20-22 Broadlawn Drive, Central Islip NY 11722 (不能交易)

出售, USD 599,999


20-22 Broadlawn Drive, Central Islip NY 11722,

楼盘类型 : 公寓

楼盘设计 : N/A

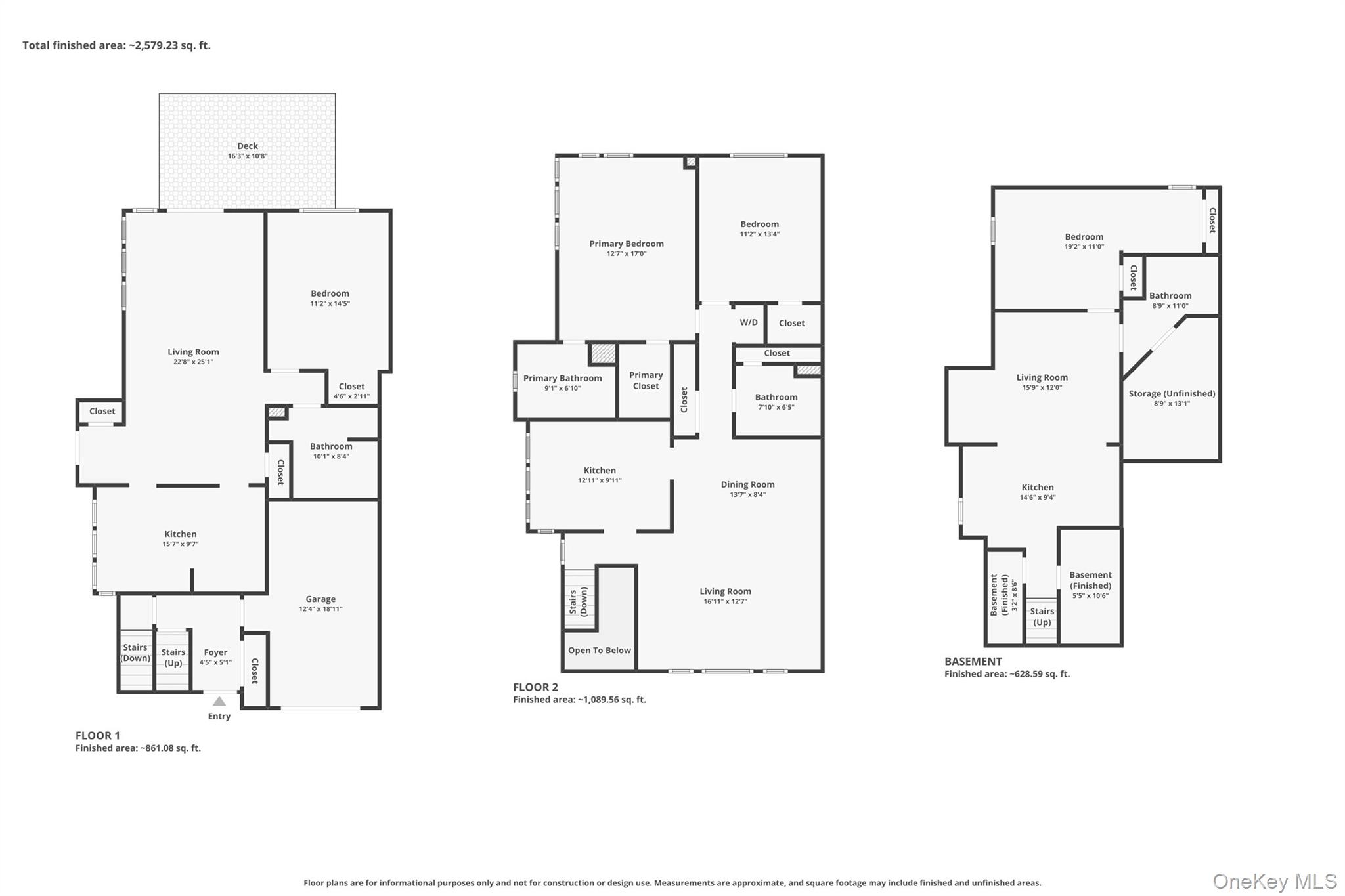
建筑面积 : 2,311 ft² / 215 m²

占地面积 : N/A

卧室 : 3

浴室 : 3

浴室(企缸) : 0

MLS#: N/A


楼盘简介

Don't miss this rare opportunity to own a turn-key legal 2-family corner unit in the highly sought-after Park Row Townhouse community! The beautifully updated, sunlit primary residence features soaring cathedral ceilings, a charming kitchen with stainless steel appliances, 2 spacious bedrooms and 2 bathrooms, including an oversized primary bedroom with a walk-in closet and private ensuite bath. A full finished basement provides additional flexible living space. The separate, tastefully updated 1 bedroom, 1 bath apartment offers excellent income potential or extended living, filled with natural light and complete with hardwood floors, stainless steel appliances, a renovated bathroom, new HVAC system (2023), and private deck overlooking beautifully maintained common greens. Enjoy low-maintenance living with HOA covering exterior maintenance, snow removal, garbage and overnight security patrol. Resort-like amenities include heated pools, tennis and pickleball courts, a clubhouse, gym and playground. Additional features include an attached one-car garage and private driveway. Prime location conveniently located near the LIRR, Southern State Parkway, Sunrise Highway, and LIE. An opportunity not to be missed!
更多
处于美国,纽约,森特勒尔艾斯利普“20-22 Broadlawn Drive, Central Islip NY 11722”是一处2,311ft²森特勒尔艾斯利普出售公寓,USD 599,9993。这个高端的森特勒尔艾斯利普公寓共包括3间卧室和3间浴室。你也可以寻找更多森特勒尔艾斯利普的豪宅、或是搜索森特勒尔艾斯利普的出售豪宅