216 Main Street, Woodstock IL 60098 (不能交易)

出售, PRICE ON APPLICATION


216 Main Street, Woodstock IL 60098,

楼盘类型 : 商业

楼盘设计 : N/A

建筑面积 : N/A

占地面积 : N/A

卧室 : 0

浴室 : 0

浴室(企缸) : 0

MLS#: N/A


楼盘简介

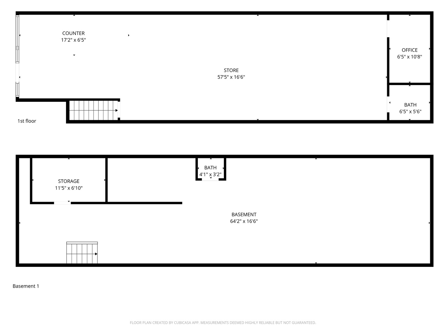
Here is a well maintained storefront in prime location just off the historic town square on Main Street across from the movie theater and one block from the train station. The main floor is a great commercial storefront with high ceiling, hardwood floor, nice display window, private bath and full basement for storage.
更多
处于美国,伊利诺斯,伍德斯托克“216 Main Street, Woodstock IL 60098”是一处伍德斯托克出售商业,PRICE ON APPLICATION0。这个高端的伍德斯托克商业共包括0间卧室和0间浴室。你也可以寻找更多伍德斯托克的豪宅、或是搜索伍德斯托克的出售豪宅