Comfort, Versatility & Evergreen Living (不能交易)

出售, USD 1,535,000


1361 Bross Court, Evergreen, CO, 80439,

楼盘类型 : 单独家庭住宅

楼盘设计 : 当代式

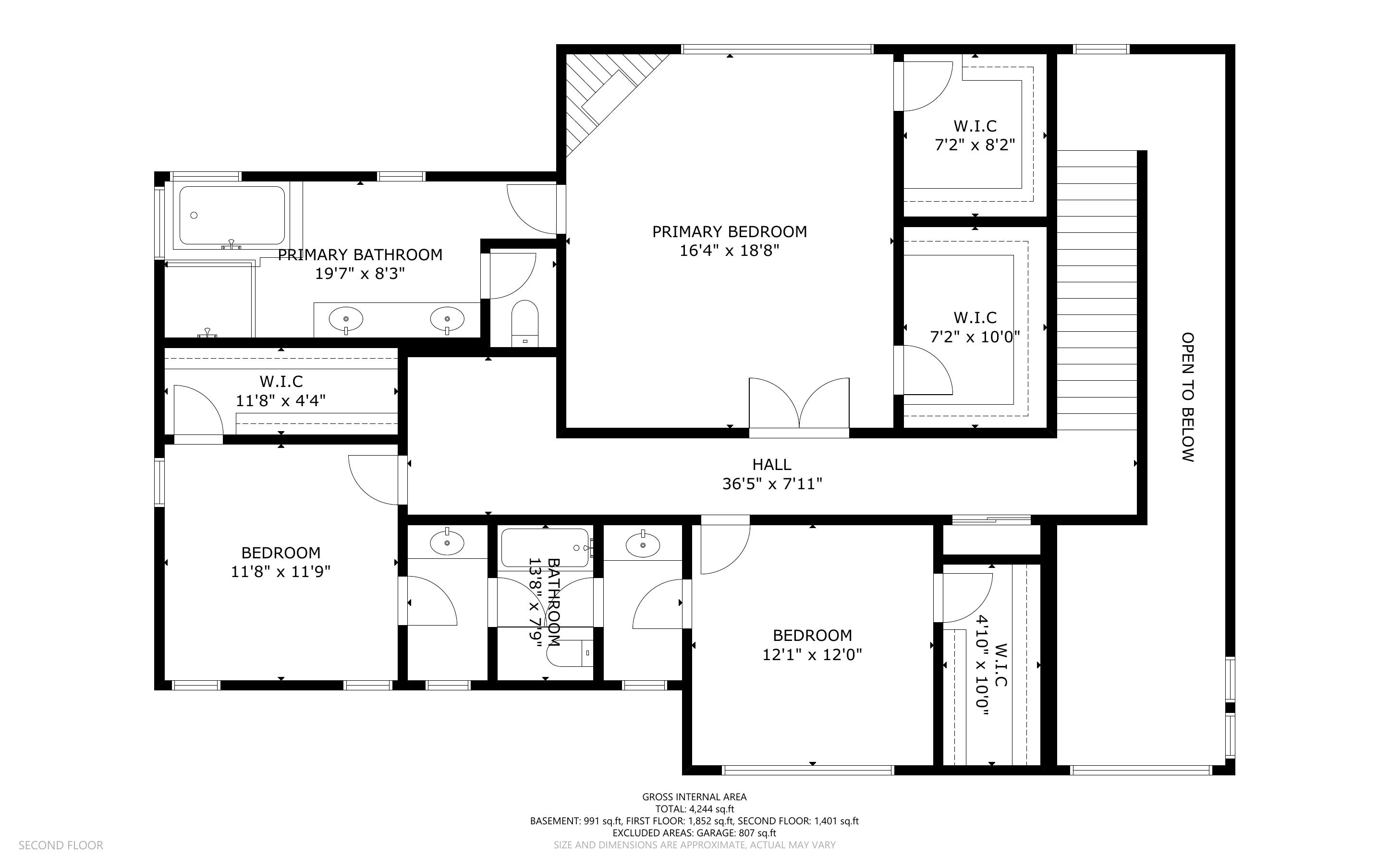
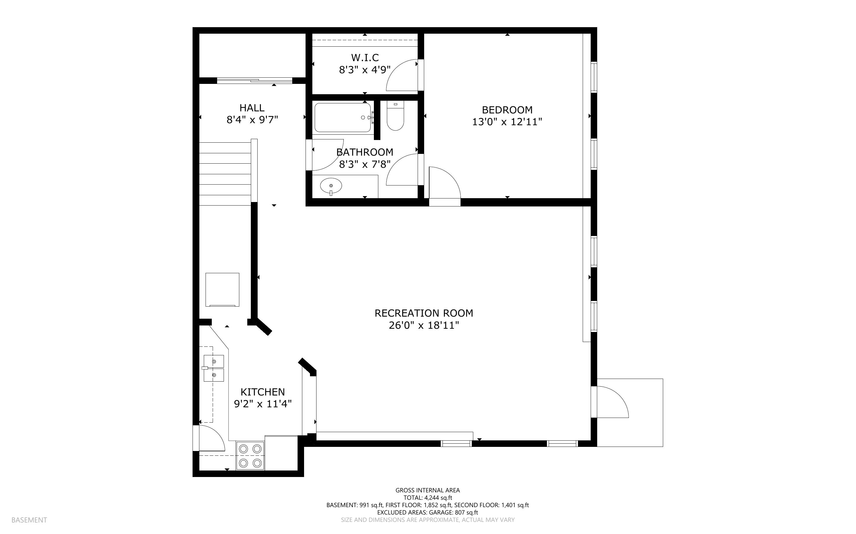
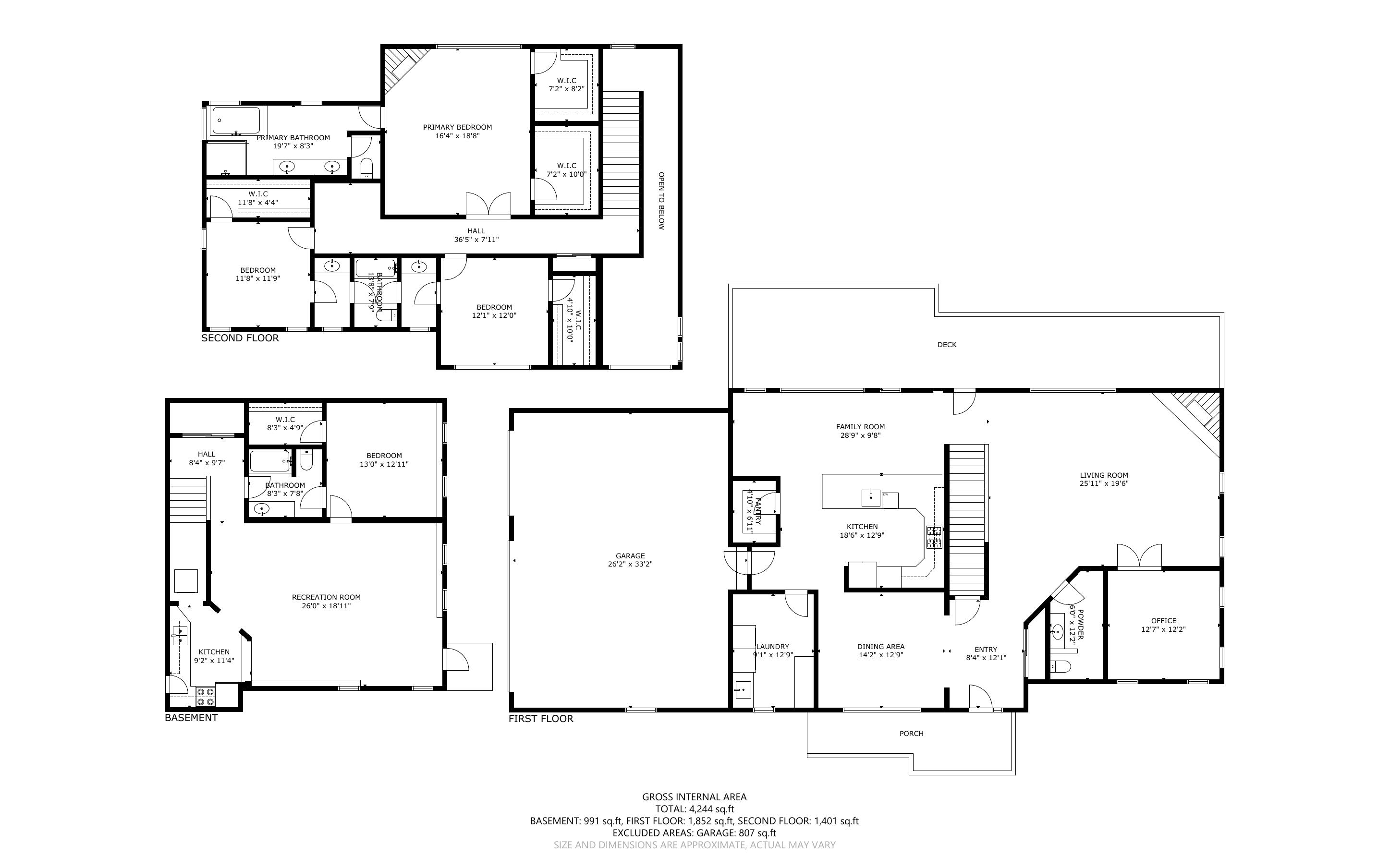
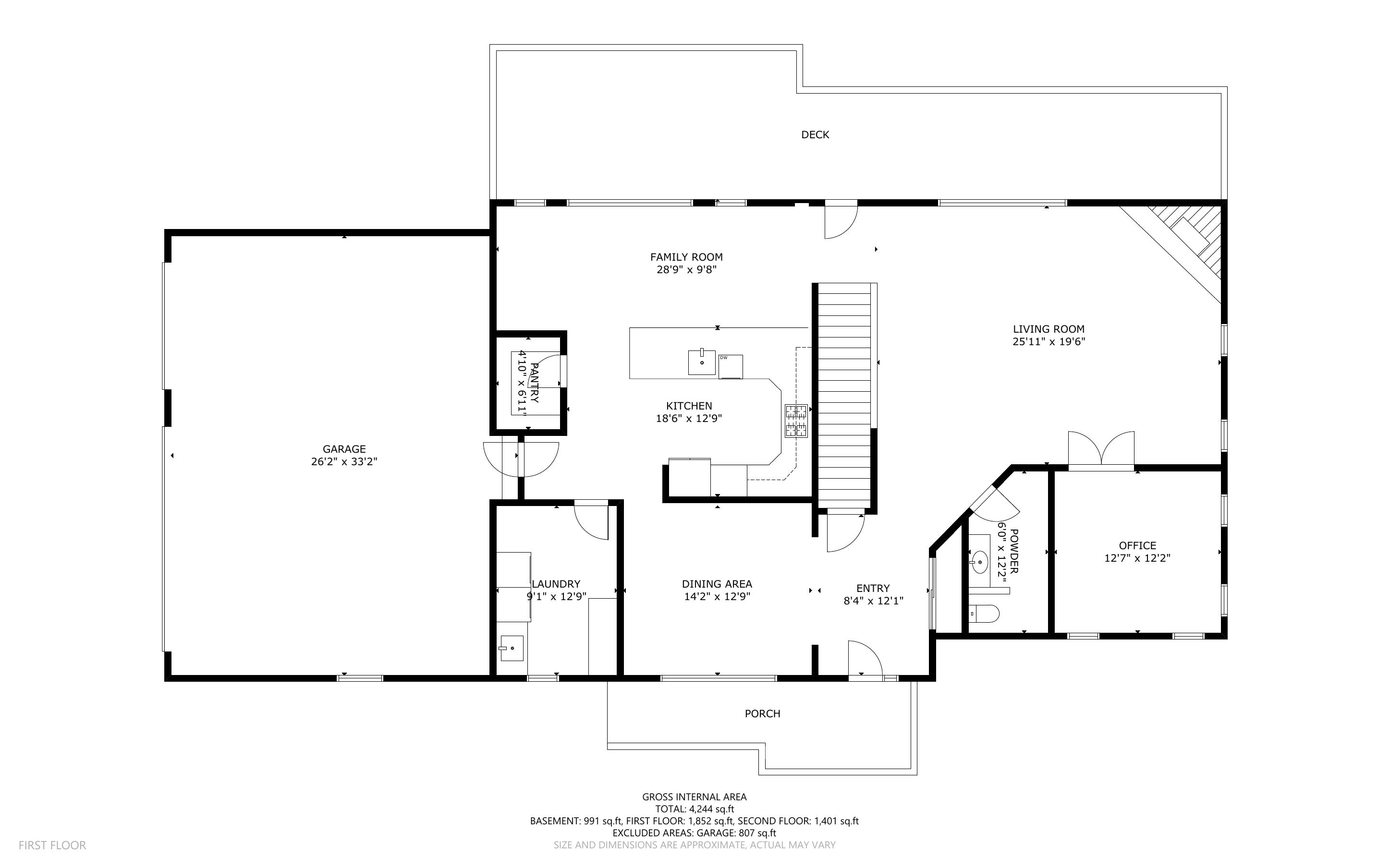
建筑面积 : 4,413 ft² / 410 m²

占地面积 : 28,314 ft² / 2,630 m² 转换占地面积

卧室 : 4

浴室 : 3

浴室(企缸) : 1

MLS#: 4851919


楼盘简介

Nestled in one of North Evergreen’s favorable enclaves, The Promontory at Soda Creek offers an exceptional opportunity to experience elevated mountain living with everyday convenience. Set on a level, partially fenced lot, this property delivers a special combination of usability, privacy, and natural beauty. The thoughtfully designed open floor plan showcases exposed beams, graceful archways, and abundant natural light, creating a warm and tastefully curated ambiance. The main level features a spacious great room with a focal point fireplace, an inviting dining area, and a private office—ideal for both productive workdays and relaxed living. The kitchen is both functional and stylish, featuring a large center island, abundant counter space, eat-in dining area, and a comfortable lounge area —perfectly suited for entertaining or daily living. An expansive deck extends the living space outdoors, offering generous seating areas and access to a usable, level yard—ideal for recreation, gatherings, or simply enjoying the peaceful surroundings. Upstairs, three generous sized bedrooms include a well appointed primary suite with vaulted ceilings, gas fireplace, and dual walk-in closets. The ensuite bath provides a private retreat, while the secondary bedrooms share a convenient, dual-access full bath. The lower level with additional exterior, separate entrance enhances flexibility with a spacious family room, guest bedroom, and full bath. A secondary kitchen space and dedicated washer and dryer create an ideal setup for guests, multigenerational living, or private accommodations. The South facing, level driveway with bonus parking turn around spaces provided easy in/out access. With close proximity to Evergreen Recreation Center, hiking/biking trails, parks, schools, hundreds of acres open space—and convenient access to Denver—this home offers a great blend of comfort, versatility, and the very best of Evergreen living.


更多

周边环境

山区生活
处于美国,科罗拉多,埃佛格林“Comfort, Versatility & Evergreen Living”是一处4,413ft²埃佛格林出售单独家庭住宅,USD 1,535,0004。这个高端的埃佛格林单独家庭住宅共包括4间卧室和3间浴室。你也可以寻找更多埃佛格林的豪宅、或是搜索埃佛格林的出售豪宅