出售, USD 1,575,000
641 158th Street, Whitestone, NY, 11357, 白石镇, 纽约, 美国
卧室 : 4
浴室 : 2
浴室(企缸) : 1
MLS#: 987375
楼盘简介
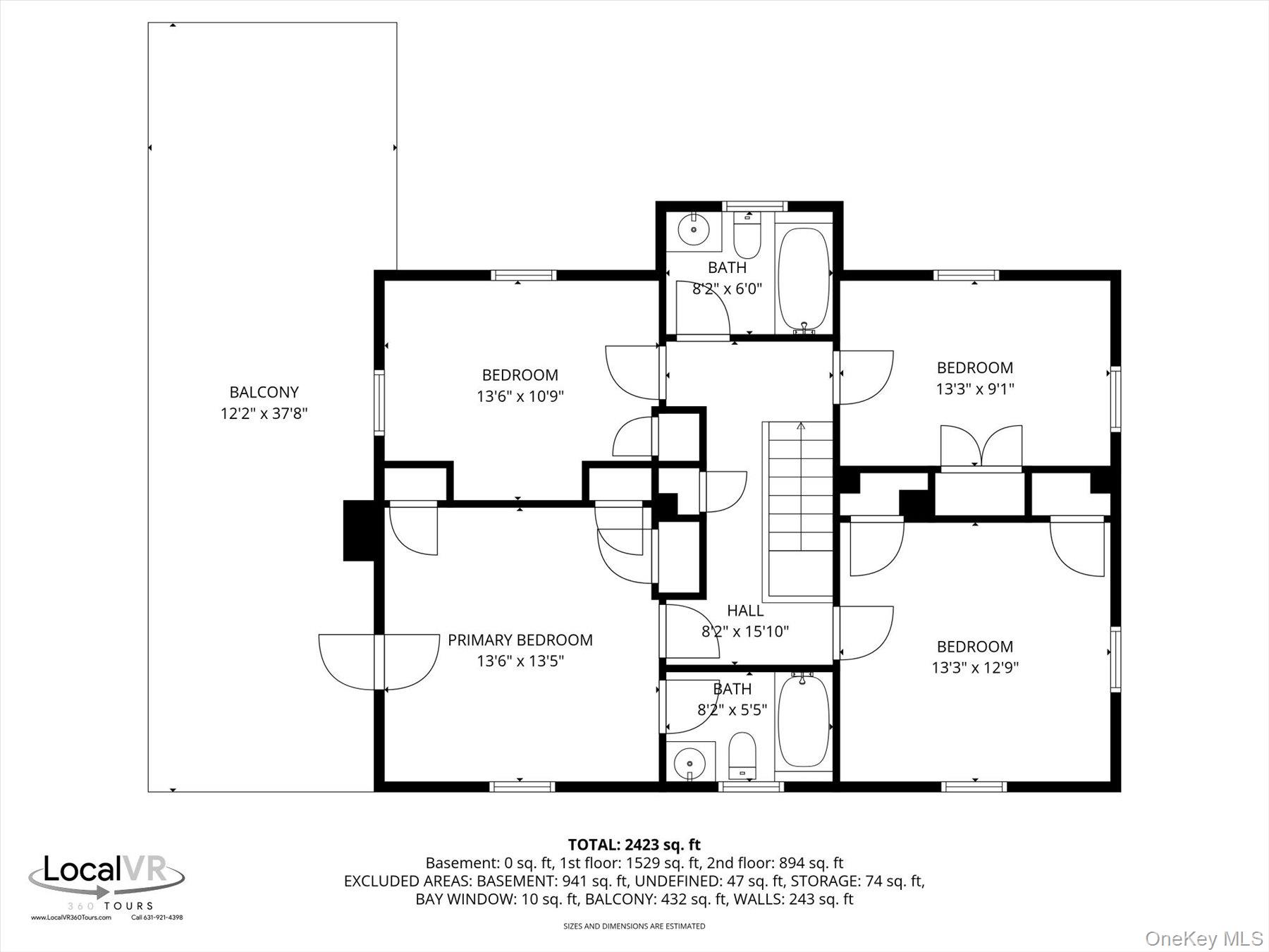
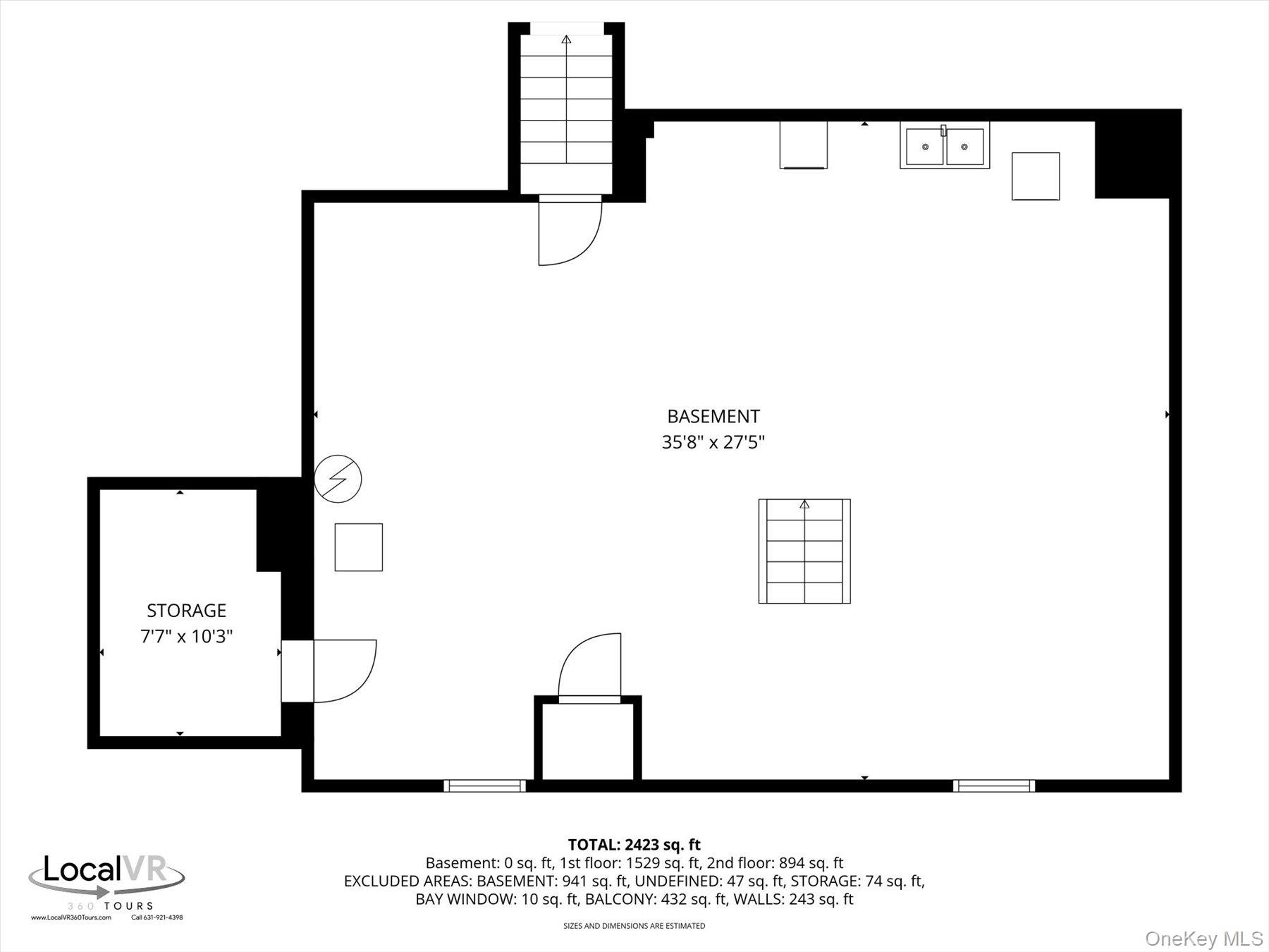
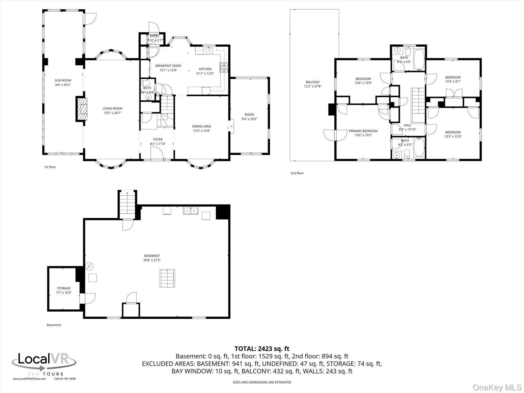
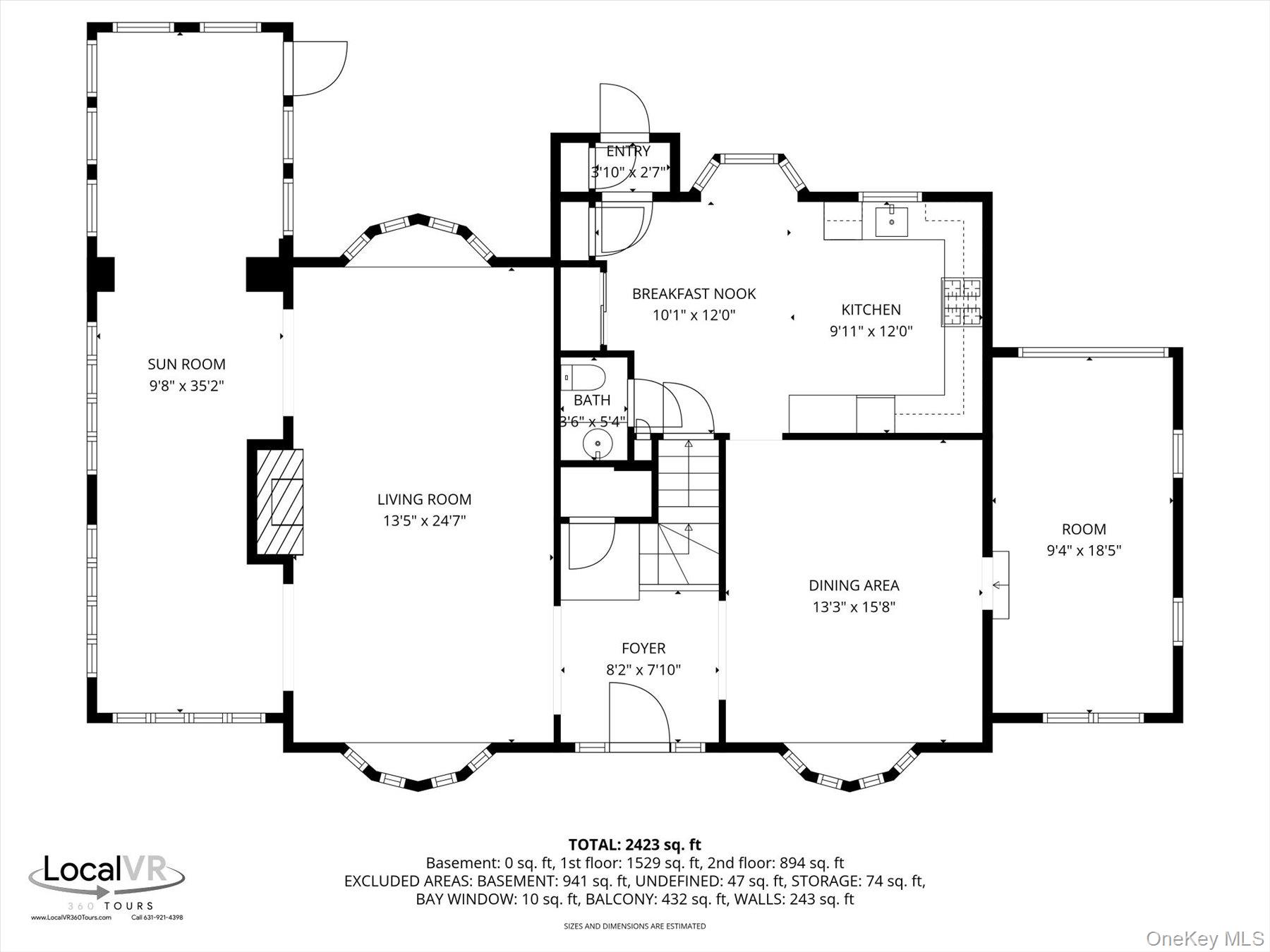
Nestled in the prestigious waterfront enclave of Beechhurst, Queens, this stately brick and stucco Colonial represents a rare opportunity to own a substantial piece of real estate on a premier 100’ x 100’ oversized lot. The residence exudes classic architectural charm, greeting guests with a grand living room anchored by a warm fireplace and an elegant formal dining room, both of which are illuminated by large, picturesque bay windows. A powder room on the first floor provides convenience for guests. The thoughtful layout continues into a functional eat-in kitchen that flows seamlessly into a dedicated mudroom and out to the expansive rear grounds, creating an ideal environment for both daily life and sophisticated entertaining.Designed to maximize natural light and versatility, the main floor boasts a bright family room, a sunny den featuring a soaring skylight, and a magnificent all-season sunroom that provides a tranquil year-round retreat with direct access to the yard. For those requiring a private workspace, the detached two-car garage includes a large second story space suitable as a gym, studio or office, offering a quiet sanctuary for remote work or creative pursuits. The upper level of this home is dedicated to luxury and rest, featuring a primary en-suite bedroom with a private bath that opens onto a generously sized terrace, along with three additional spacious bedrooms and a full-sized hallway bathroom.Equipped with Central Air Conditioning for modern comfort, this home offers a lifestyle defined by its unique coastal amenities. The full basement provides a high-capacity laundry room, a convenient half-bath, and extensive storage solutions to meet every organizational need. Residents enjoy exclusive access to a private beach club situated just on the corner, which serves as a spectacular vantage point for panoramic views of the Whitestone and Throggs Neck Bridges. Combining suburban tranquility with unparalleled scale and community perks, this Beechhurst gem is a quintessential find for the discerning buyer seeking space and elegance within New York City.
更多
处于美国,纽约,白石镇的“641 158th Street, Whitestone, NY, 11357”是一处2,423ft²白石镇出售单独家庭住宅,USD 1,575,0004。这个高端的白石镇单独家庭住宅共包括4间卧室和2间浴室。你也可以寻找更多白石镇的豪宅、或是搜索白石镇的出售豪宅。