Lovely Neighborhood Split Level Home Set on Over an Acre Property (不能交易)

出售, USD 799,000


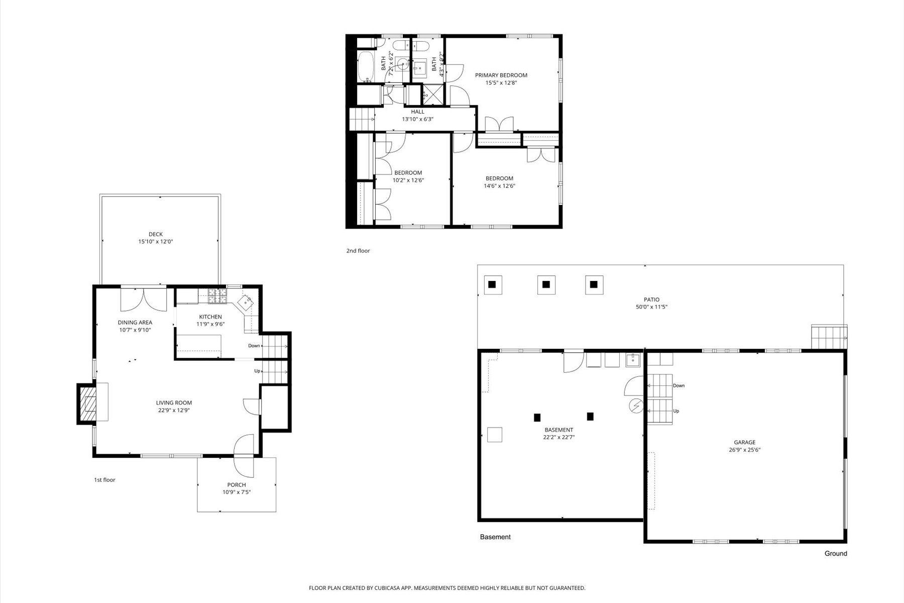
100 Old Fort Road, Bernardsville, NJ, 07924,

楼盘类型 : 单独家庭住宅

楼盘设计 : 分层式

建筑面积 : N/A

占地面积 : 45,738 ft² / 4,249 m² 转换占地面积

卧室 : 3

浴室 : 2

浴室(企缸) : 0

MLS#: 4023020


楼盘简介

Set on over an acre in a highly sought-after Bernardsville neighborhood, this lovely three bedroom, two bath split-level home offers space, comfort, and charm. The bright and sunny, freshly painted interior features a large living room filled with natural light from oversized windows and newly refinished hardwood floors throughout. An updated kitchen boasts stainless steel appliances, and the bathrooms are tastefully renovated. Additional highlights include a two car garage, a walk-out basement offering flexible storage space, and a large private deck located just off the formal dining room perfect for relaxing or entertaining. The level, beautifully maintained, professionally landscaped yard provides plenty of room to enjoy the outdoors, all set on a picturesque, tree-lined street in a desirable location. All this, plus close proximity to vibrant downtown Bernardsville and easy access to NYC trains and highways.
更多
处于美国,新泽西,伯纳茨维尔“Lovely Neighborhood Split Level Home Set on Over an Acre Property”是一处伯纳茨维尔出售单独家庭住宅,USD 799,0003。这个高端的伯纳茨维尔单独家庭住宅共包括3间卧室和2间浴室。你也可以寻找更多伯纳茨维尔的豪宅、或是搜索伯纳茨维尔的出售豪宅