2 Charcoal Lane (不能交易)

出售, USD 2,198,000


2 Charcoal Lane, Westport, CT, 06880,

楼盘类型 : 单独家庭住宅

楼盘设计 : 单层农庄式

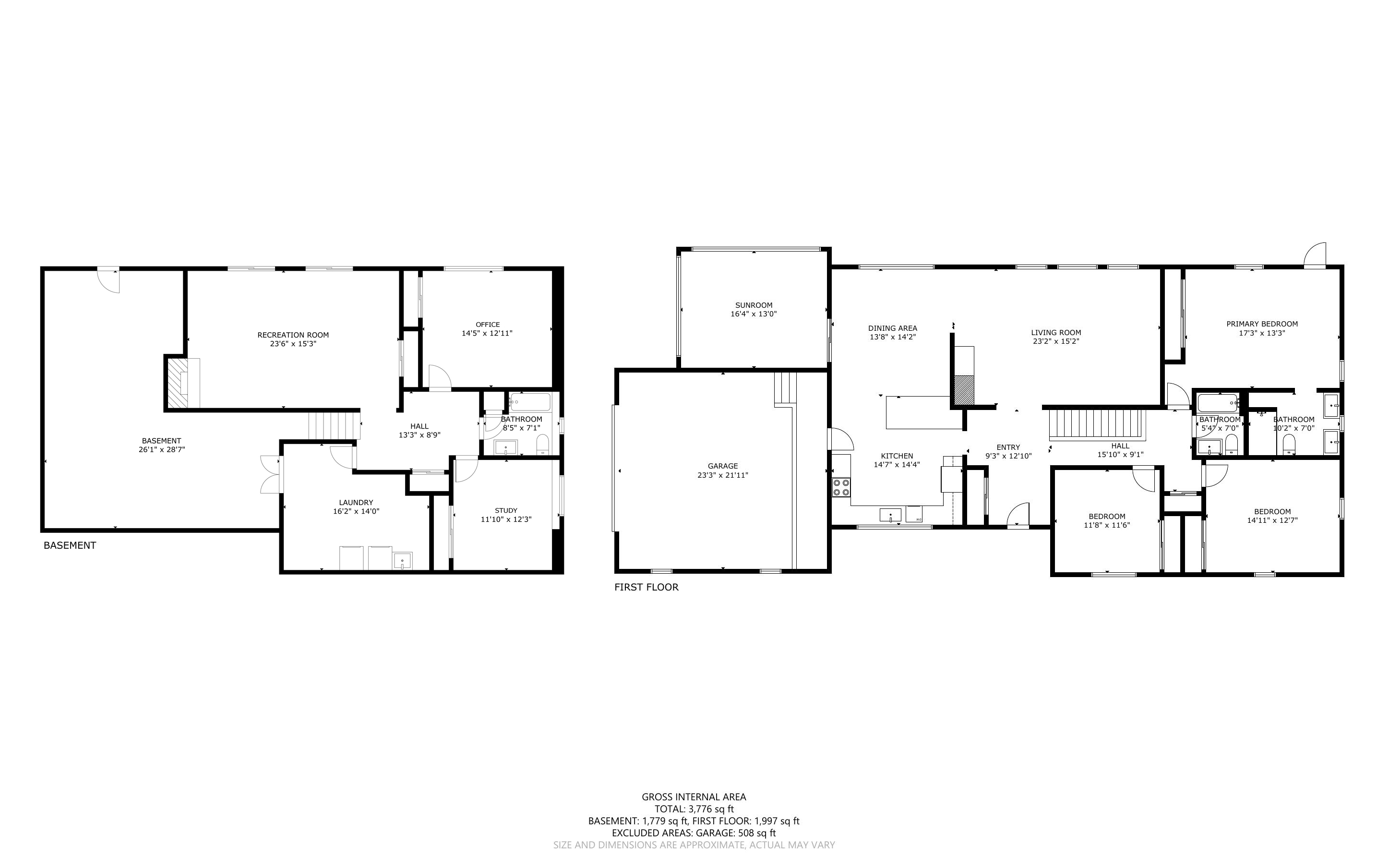
建筑面积 : 3,810 ft² / 354 m²

占地面积 : 88,426 ft² / 8,215 m² 转换占地面积

卧室 : 3

浴室 : 3

浴室(企缸) : 0

MLS#: 24169921


楼盘简介

Located in the highly sought-after Charcoal Hill neighborhood, this home sits on 2+ private acres bordering a 7-acre Aspetuck Land Trust preserve. Tucked on a quiet cul-de-sac among distinguished Frazier Peters homes, it offers serene privacy with convenient access to town, the Merritt Parkway, and Coleytown schools. This meticulously maintained, move-in ready 2-level residence features 3 bedrooms and 3 full baths, PLUS a fully finished walk-out lower level with a spacious living room featuring a fireplace, a full bath, and two additional rooms ideal for a home office, guest space, or gym-perfect for today's flexible living needs. The main level is anchored by a sprawling living room that flows seamlessly into the dining area and a chef's kitchen. Outfitted with premium built-in Bertazzoni appliances, Kohler fixtures, and generous storage, the kitchen is truly the heart of the home. Sunset views can be enjoyed from the primary bedroom, living areas, and dual decks. Structural double-hung Marvin windows and handmade iron stair railings add architectural elegance, while modern Insteon SMART systems for lighting and HVAC ensure efficiency. This is a rare opportunity to enjoy luxury living surrounded by protected natural beauty in a prime Westport location.
更多
处于美国,康涅狄格,韦斯特菲尔德“2 Charcoal Lane”是一处3,810ft²韦斯特菲尔德出售单独家庭住宅,USD 2,198,0003。这个高端的韦斯特菲尔德单独家庭住宅共包括3间卧室和3间浴室。你也可以寻找更多韦斯特菲尔德的豪宅、或是搜索韦斯特菲尔德的出售豪宅