1207 Delafield Place NW, Washington, DC, 20011 (不能交易)

出售, USD 1,575,000


1207 Delafield Place NW, Washington, DC, 20011,

楼盘类型 : 其他住宅

楼盘设计 : 农家

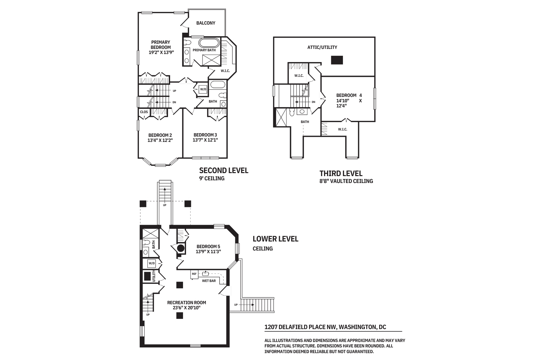
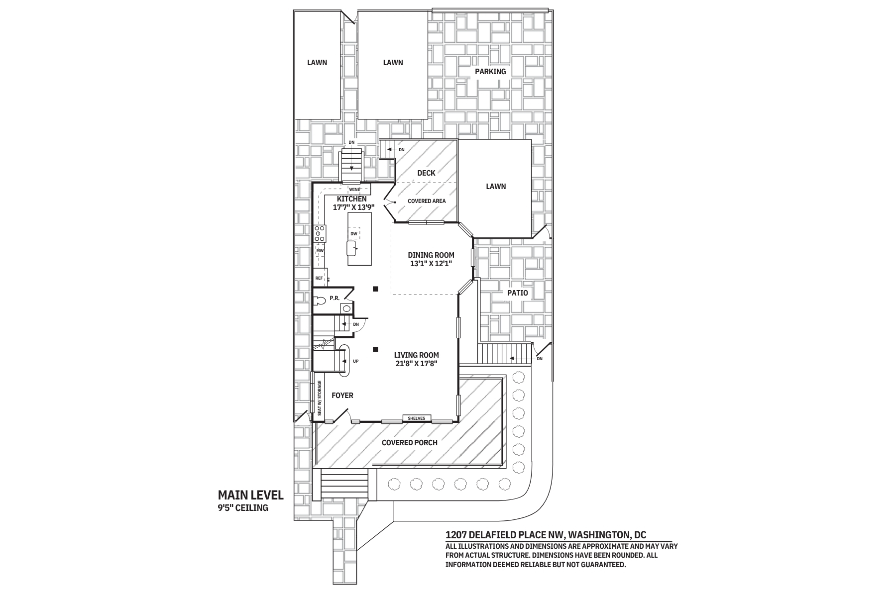
建筑面积 : 3,138 ft² / 292 m²

占地面积 : N/A

卧室 : 5

浴室 : 4

浴室(企缸) : 1

MLS#: DCDC2257316


楼盘简介

Set on one of 16th Street Heights' most beloved tree-lined blocks, this modern farmhouse delivers a storybook façade with effortless sophistication.Outdoor season starts on the wraparound front porch and continues on the deck off the kitchen ready for grilling season. The back yard is perfect for cutting gardens, veggie gardens, or a good soccer practice field. Inside, warm wood and crisp white details make a welcoming first impression. The living room is spacious enough to host and comfortable enough to unwind in. Light pours through oversized windows. The kitchen anchors the main level with custom cabinetry, quartz countertops, brass pendants, and an eat-in island. It’s polished, yet not too precious for everyday living. The coffered dining room sits just beside. Wrapped by windows it is refined and equally suited to a weeknight dinner or a weekend dinner party.Upstairs, the primary suite has its own private deck perfect for quiet coffee talks or late night wine wind downs. The bath has a soaking tub, separate shower with spa panel, and a double vanity. Two additional bedrooms, a hall bath, and second-floor laundry round out this level.The top floor is vaulted, light-filled, and flexible. Make it an office, studio, music room, workout space, or simply extra room to spread out. This level has its own full bath.The lower level has two separate entrances, kitchenette, full bedroom, separate laundry, and living space. It’s ready for guests, an au pair, or potential rental income.Outside enjoy the wraparound porch, rear deck, private backyard, and secure off-street parking. In DC, that combination is hard to find.16th Street Heights offers Rock Creek Park trails nearby, top public and private schools, and easy access to downtown DC and Maryland.
更多
处于美国,哥伦比亚,华盛顿“1207 Delafield Place NW, Washington, DC, 20011”是一处3,138ft²华盛顿出售其他住宅,USD 1,575,0005。这个高端的华盛顿其他住宅共包括5间卧室和4间浴室。你也可以寻找更多华盛顿的豪宅、或是搜索华盛顿的出售豪宅