One-of-a-kind offering redefines private mountain luxury in Golden (只供參考)

出售, USD 2,950,000


21967 Mountsfield Drive, Golden, co, 80401,

樓盤類型 : 單獨家庭住宅

樓盤設計 : N/A

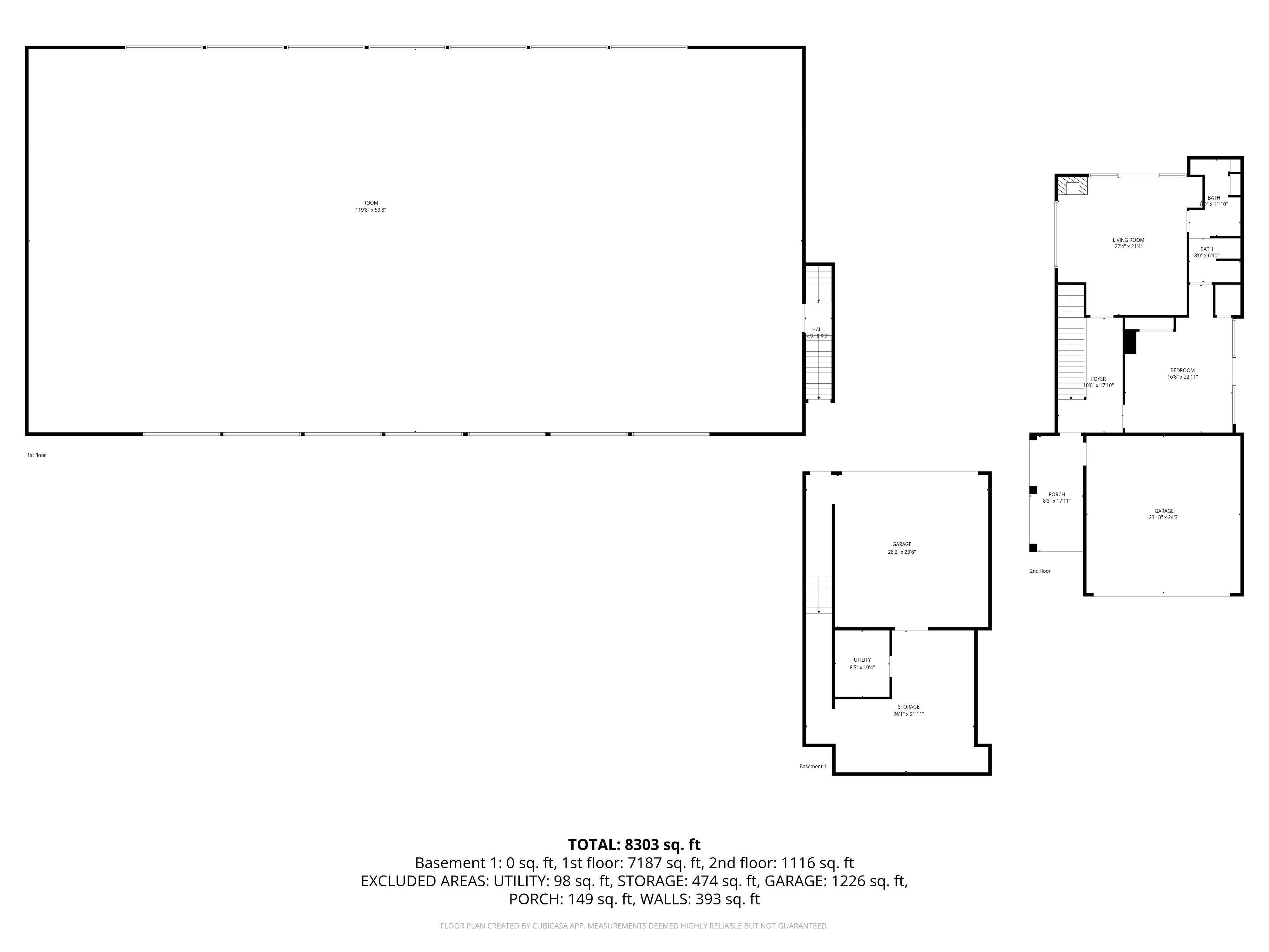
建築面積 : 6,227 ft² / 579 m²

佔地面積 : 110,206 ft² / 10,238 m² 轉換佔地面積

睡房 : 5

浴室 : 5

浴室(企缸) : 0

MLS#: 8498631


樓盤簡介

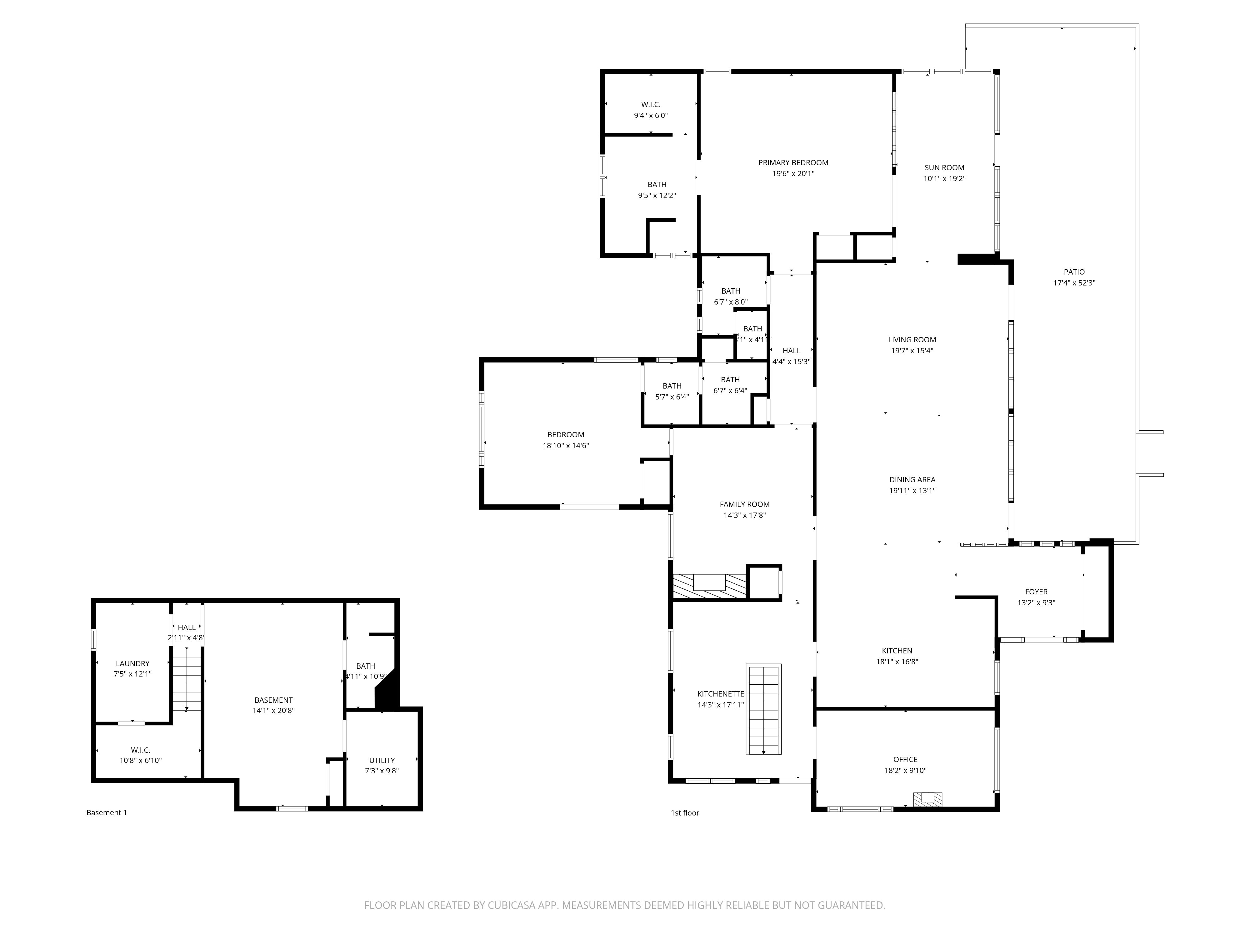
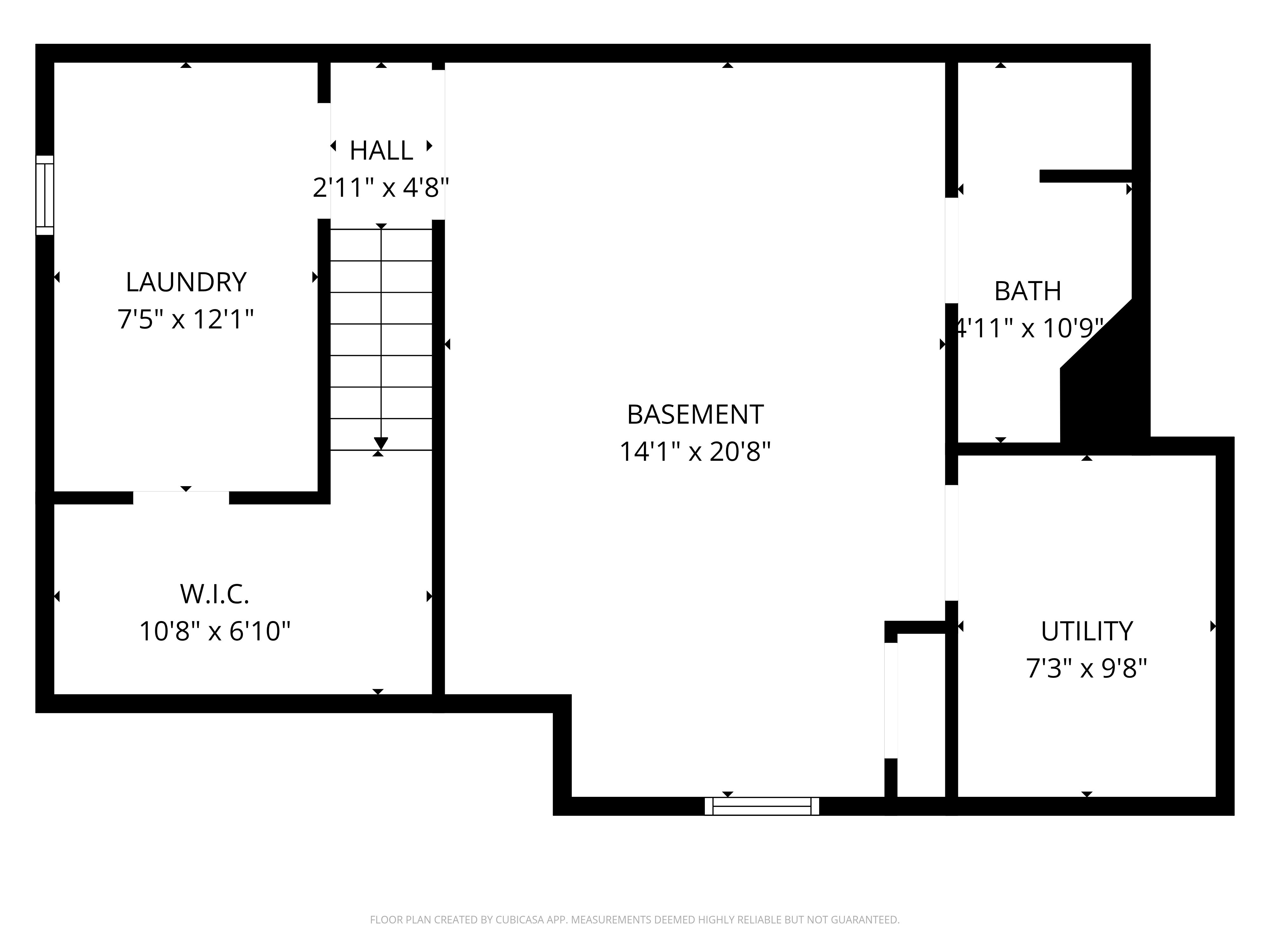
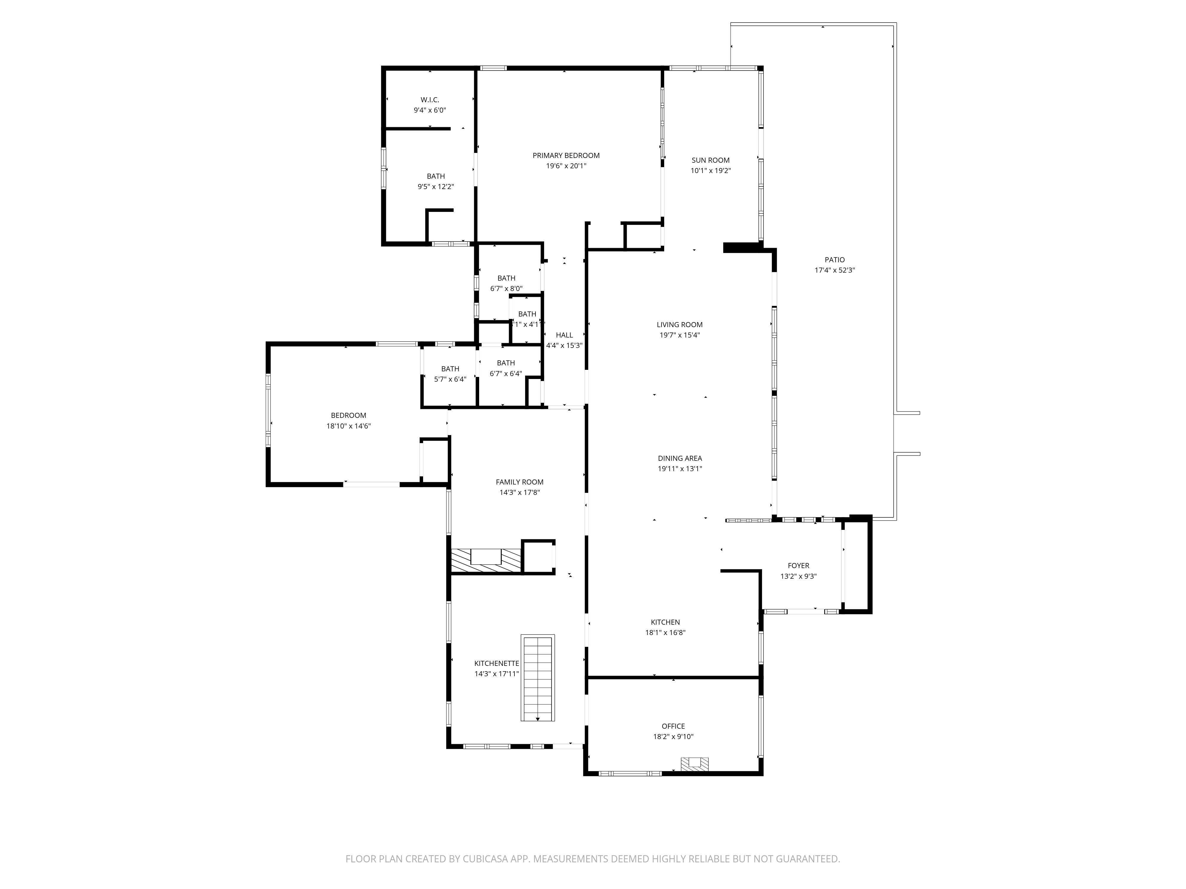
Perched atop coveted Lookout Mountain & spanning an extraordinary 2.53-acre estate, this one-of-a-kind offering redefines private mountain luxury in Golden. A rare sanctuary of serenity & sophistication, the property commands breathtaking panoramic views while delivering complete privacy & an unparalleled lifestyle experience. The main residence, encompassing 2536 SqFt above grade & 732 below is thoughtfully designed to capture its awe-inspiring surroundings. 3 bedrooms & 3 bathrooms are complemented by dramatic floor-to-ceiling windows that frame sweeping views of the Denver skyline & rolling foothills. Expansive living spaces are bathed in natural light, while a main kitchen, prep kitchen, & living room provide both versatility & effortless room for entertaining. A wraparound patio along the east side of the home creates seamless indoor-outdoor living, inviting morning sunrises & evening city lights into everyday life. The architectural showpiece of the estate is the custom tennis cathedral. An extraordinary, covered tennis pavilion unlike anything else on the market. Both dramatic & refined, this statement structure elevates recreation into an experience. Above & overlooking the tennis court, a private 1 bed, 1 bath (1,267 SqFt) retreat with a living room/game room for hosting & relaxation. Complementing the main residence & tennis cathedral is an additional fully independent guest home featuring 1 bed, 1 bath (987 SqFt) a private entrance, kitchen, and laundry room. Ideal for extended family or guests. The property contains extensive garage capacity (4 garage spaces) & thoughtfully designed storage areas to accommodate multiple vehicles & recreational equipment. A generous workshop or additional storage space further enhances the estate’s functionality. Perfectly positioned just minutes from historic downtown Golden, yet worlds away in feel, this remarkable property offers immediate access to trails, open space, and the very best of Colorado’s natural beauty.
更多
位於美國,科羅拉多,戈爾登“One-of-a-kind offering redefines private mountain luxury in Golden”是一處6,227ft²戈爾登出售單獨家庭住宅,USD 2,950,000。這個高端的戈爾登單獨家庭住宅共包括5間臥室和5間浴室。你也可以尋找更多戈爾登的豪宅、或是搜索戈爾登的出售豪宅