出售, USD 6,995,000
5070 Millwood Lane NW, Washington, DC, 20016, 華盛頓, 哥倫比亞, 美國
樓盤類型 : 其他住宅
樓盤設計 : 傳統式
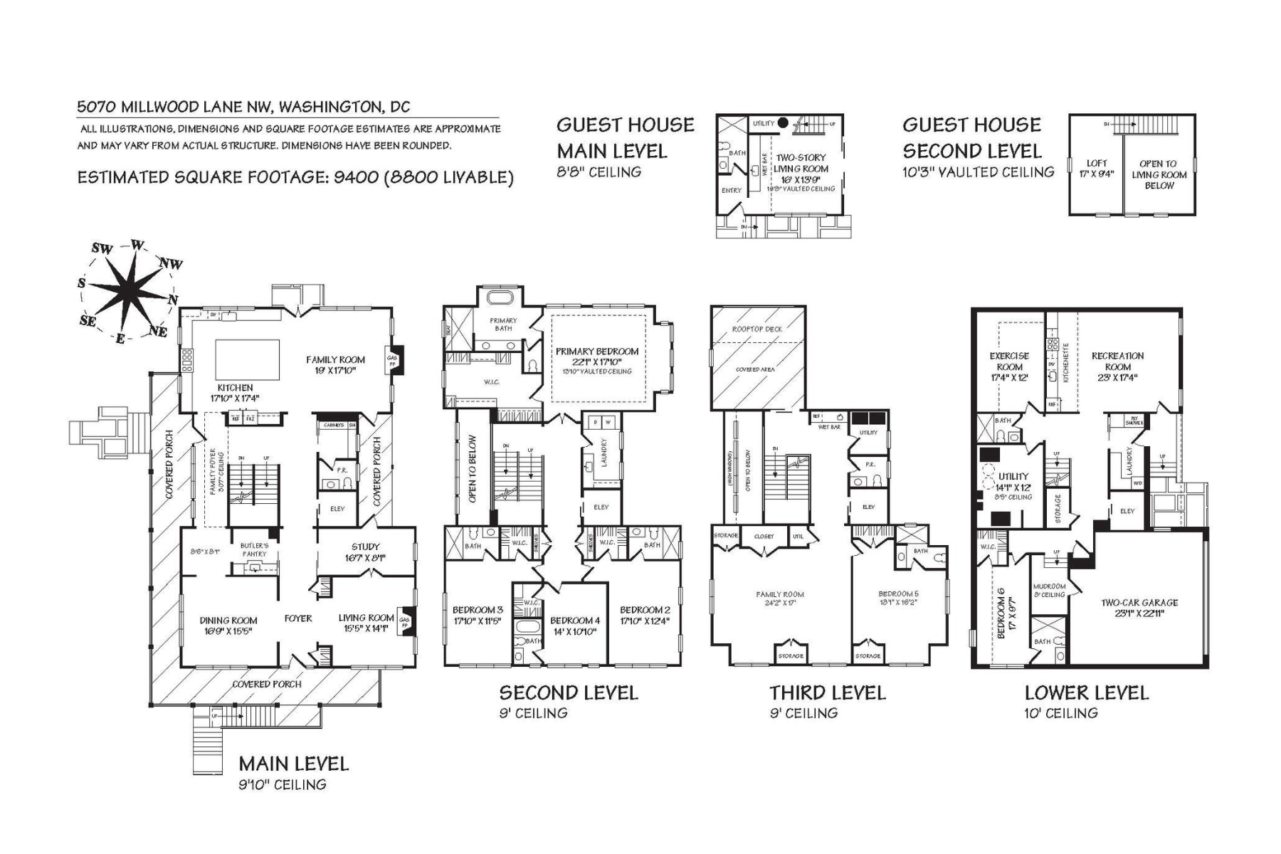
建築面積 : 8,800 ft² / 818 m²
佔地面積 : N/A
睡房 : 6
浴室 : 8
浴室(企缸) : 2
MLS#: DCDC2254958
樓盤簡介
Exceptional brand-new construction estate by premier developer Coba Properties on coveted Millwood Lane offering 9,400 SF of luxurious living space serviced by an elevator to all levels - including the top floor Loggia! Architecture by Teass Warren Architects, Interior Design by Studio Sophîste, and Exteriors designed by Richardson & Associates Landscape Architecture. This stunning 6-bedroom, 8-bathroom, 2-half bathroom residence sits on a generous 13,438 SF parcel and features impeccable craftsmanship throughout with a solid new foundation ensuring decades of worry-free living. The spectacular outdoor programming with 1,000+ SF of covered space includes a resort-style swimming pool and separate pool house perfect for entertaining and relaxation - and level with the main level of the residence. Every detail has been thoughtfully designed by Coba Properties to deliver the ultimate in modern luxury living while maintaining the timeless elegance expected in this prestigious Northwest DC location. This remarkable new build represents a rare opportunity to own a completely turnkey estate in one of the area's most sought-after, elite neighborhoods!
更多
位於美國,哥倫比亞,華盛頓的“5070 Millwood Lane NW, Washington, DC, 20016”是一處8,800ft²華盛頓出售其他住宅,USD 6,995,000。這個高端的華盛頓其他住宅共包括6間臥室和8間浴室。你也可以尋找更多華盛頓的豪宅、或是搜索華盛頓的出售豪宅。