2710 S Joyce, Arlington, VA, 22202 (只供參考)

出售, USD 1,035,000


2710 S Joyce, Arlington, VA, 22202,

樓盤類型 : 其他住宅

樓盤設計 : N/A

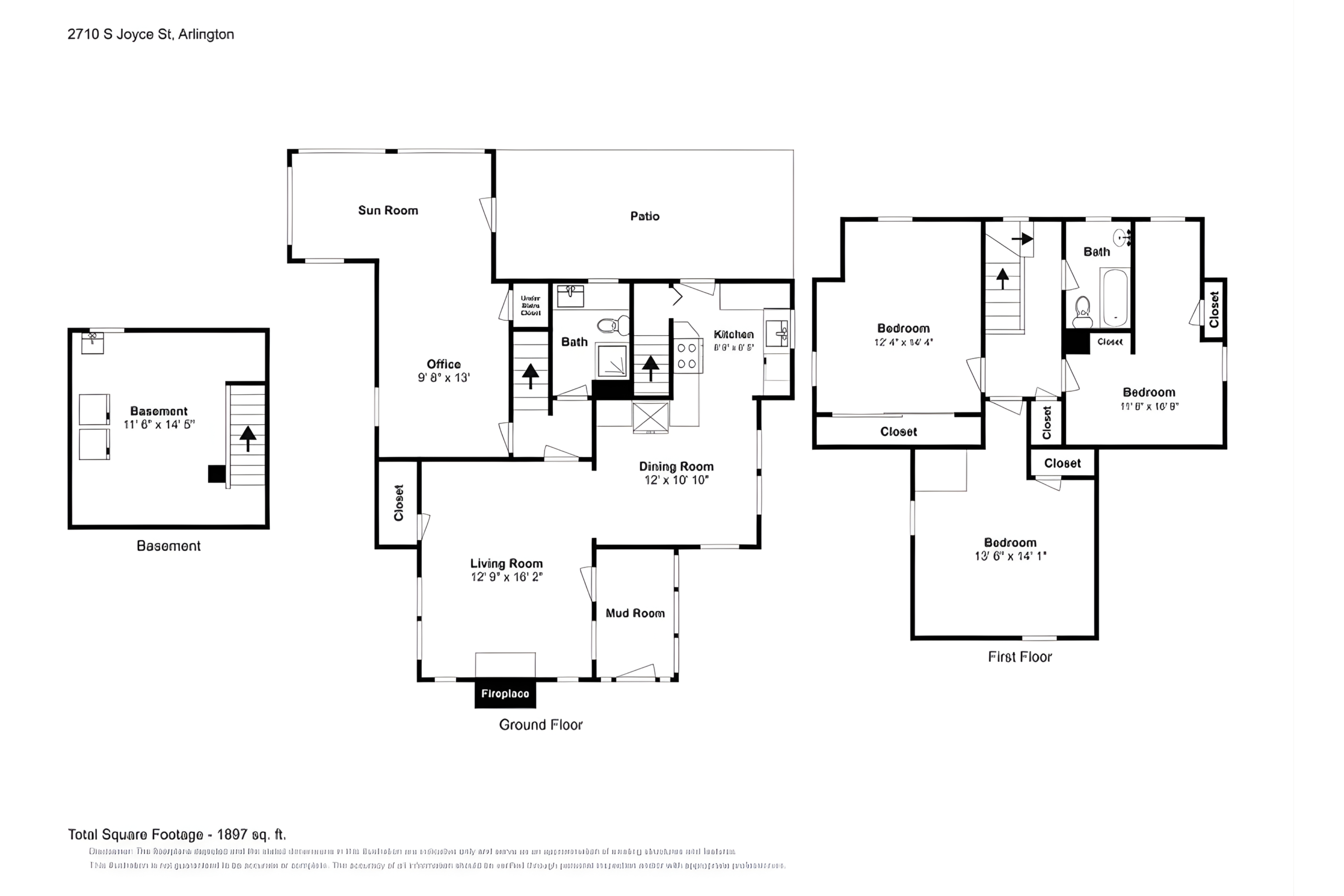
建築面積 : 16,350 ft² / 1,519 m²

佔地面積 : N/A

睡房 : 3

浴室 : 2

浴室(企缸) : 0

MLS#: VAAR2070466


樓盤簡介

Charm, character, and exceptional convenience define this beautifully updated Cape Cod in Arlington’s sought-after 22202. Tucked just off Arlington Ridge Road in a quiet, tree-lined setting, this 3-bedroom, 2-bath home offers effortless access to DC, Amazon HQ2, National Landing, the Pentagon, and Old Town Alexandria.The home features two finished levels plus an unfinished lower level, detached garage, and long driveway to accommodate multiple vehicles. Inside, a light-filled entry welcomes you into a thoughtfully updated interior with hardwood floors throughout. The main level showcases a fully renovated European-style kitchen (2020) with quartz countertops and ENERGY STAR appliances, a spacious living room with wood-burning fireplace, a renovated full bath, and a versatile bonus room ideal for a home office, gym, or lounge.Upstairs, you’ll find three bedrooms and a full bath, all complemented by fresh interior paint. Outdoor living is equally inviting, with a large patio, retractable awning, and garden space - perfect for entertaining or relaxing.Additional highlights include a new roof (2021) and an unbeatable location just around the corner to bus service, minutes to National Airport, I-395, the GW Parkway and only a stoplight to Washington, DC. Enjoy easy access to the Four Mile Run Trail, nearby parks, grocery stores, fitness options, and the vibrant dining and shopping scene of Del Ray.A rare opportunity to own a move-in ready home in a peaceful setting with exceptional connectivity and lifestyle appeal. (NOTE: Professional photos are from 2021 when I sold the property as the listing agent.)
更多
位於美國,弗吉尼亞,阿靈頓郡“2710 S Joyce, Arlington, VA, 22202”是一處16,350ft²阿靈頓郡出售其他住宅,USD 1,035,000。這個高端的阿靈頓郡其他住宅共包括3間臥室和2間浴室。你也可以尋找更多阿靈頓郡的豪宅、或是搜索阿靈頓郡的出售豪宅