出售, USD 4,995,000
3306-3308 Rittenhouse Street NW, Washington, DC, 20015, 華盛頓, 哥倫比亞, 美國
樓盤類型 : 其他住宅
樓盤設計 : 殖民地
建築面積 : 8,200 ft² / 762 m²
佔地面積 : N/A
睡房 : 6
浴室 : 5
浴室(企缸) : 3
MLS#: DCDC2257476
樓盤簡介
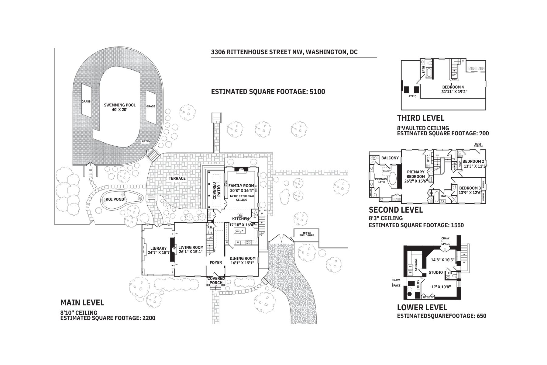
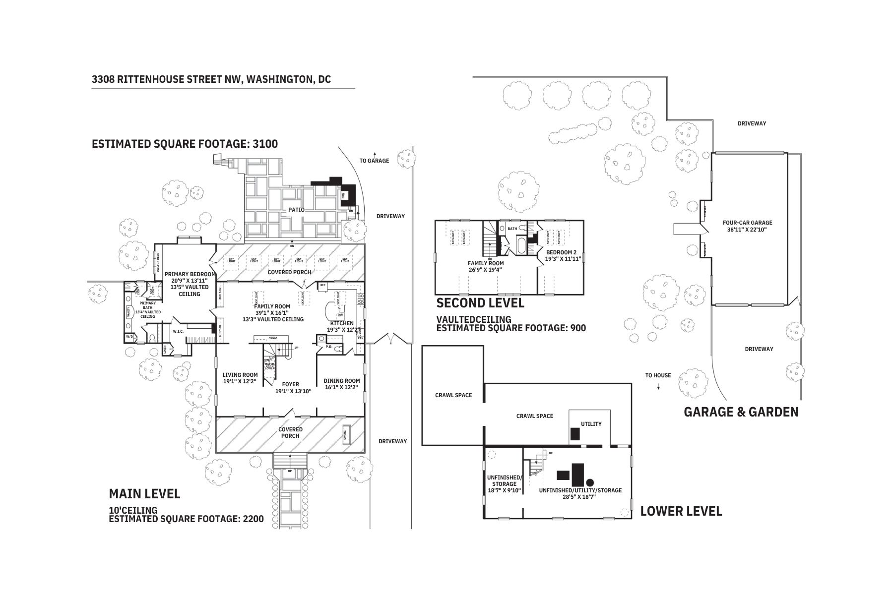
A rare offering in Washington’s Chevy Chase neighborhood, 3306 and 3308 Rittenhouse Street NW present a singular estate of remarkable scale and presence. Comprising two contiguous properties that live as one cohesive compound, the offering spans approximately 8,200 square feet with 6 bedrooms, 5 full baths, and 3 half baths, set across an extraordinary 0.91-acre parcel, a rarity within one of the city’s most established residential enclaves. The approach reveals a setting defined by land and landscape. Mature trees and layered plantings frame a sweeping expanse that unfolds with a sense of quiet seclusion, where the grounds read less as a traditional yard and more as a private park. What distinguishes the offering is not only its scale, but the way the two homes exist in quiet alignment. A shared backyard connects both residences in a tranquil, park-like setting that feels intentional and complete. Meandering walking paths, a pool, Koi pond, and multiple destinations for gathering and retreat are thoughtfully integrated throughout, creating an environment equally suited for intimate daily living and large-scale entertaining. A detached garage further enhances the estate’s flexibility, offering space for parking, storage, or future adaptation. Designed to accommodate both present living and long-term vision, the dual-residence configuration introduces a rare level of versatility. The estate lends itself naturally to a true family compound, where multiple households can exist in parallel while maintaining a balance of connection and independence. Whether for multigenerational living, extended family use, or legacy ownership, the scale and separation of the homes create a lifestyle defined by privacy and permanence. Beyond its immediate livability, the offering presents compelling potential for future reimagination. The combined parcels provide a substantial canvas for expansion, new construction, or comprehensive redevelopment. Opportunities of this nature are seldom seen within the city. The ability to control nearly an acre of land in one of Washington’s most established residential enclaves, while maintaining a cohesive and highly usable setting, places this offering in a category of its own. It is not simply the size, but the way the land lives and functions, creating a sense of space, privacy, and permanence rarely achieved in an urban environment. With its commanding land presence, cohesive design, and enduring potential, 3306 and 3308 Rittenhouse Street NW stand among the Capital Region’s most distinctive residential offerings, defined not only by what exists today, but by what it makes possible.
更多
位於美國,哥倫比亞,華盛頓的“3306-3308 Rittenhouse Street NW, Washington, DC, 20015”是一處8,200ft²華盛頓出售其他住宅,USD 4,995,000。這個高端的華盛頓其他住宅共包括6間臥室和5間浴室。你也可以尋找更多華盛頓的豪宅、或是搜索華盛頓的出售豪宅。