สำหรับขาย, USD 699,999
111 Fulton Street 420, New York, NY, 10038, New York, นิวยอร์ก, ประเทศสหรัฐอเมริกา
ประเภทอสังหาริมทรัพย์ : คอนโด
รูปแบบอสังหาริมทรัพย์ : N/A
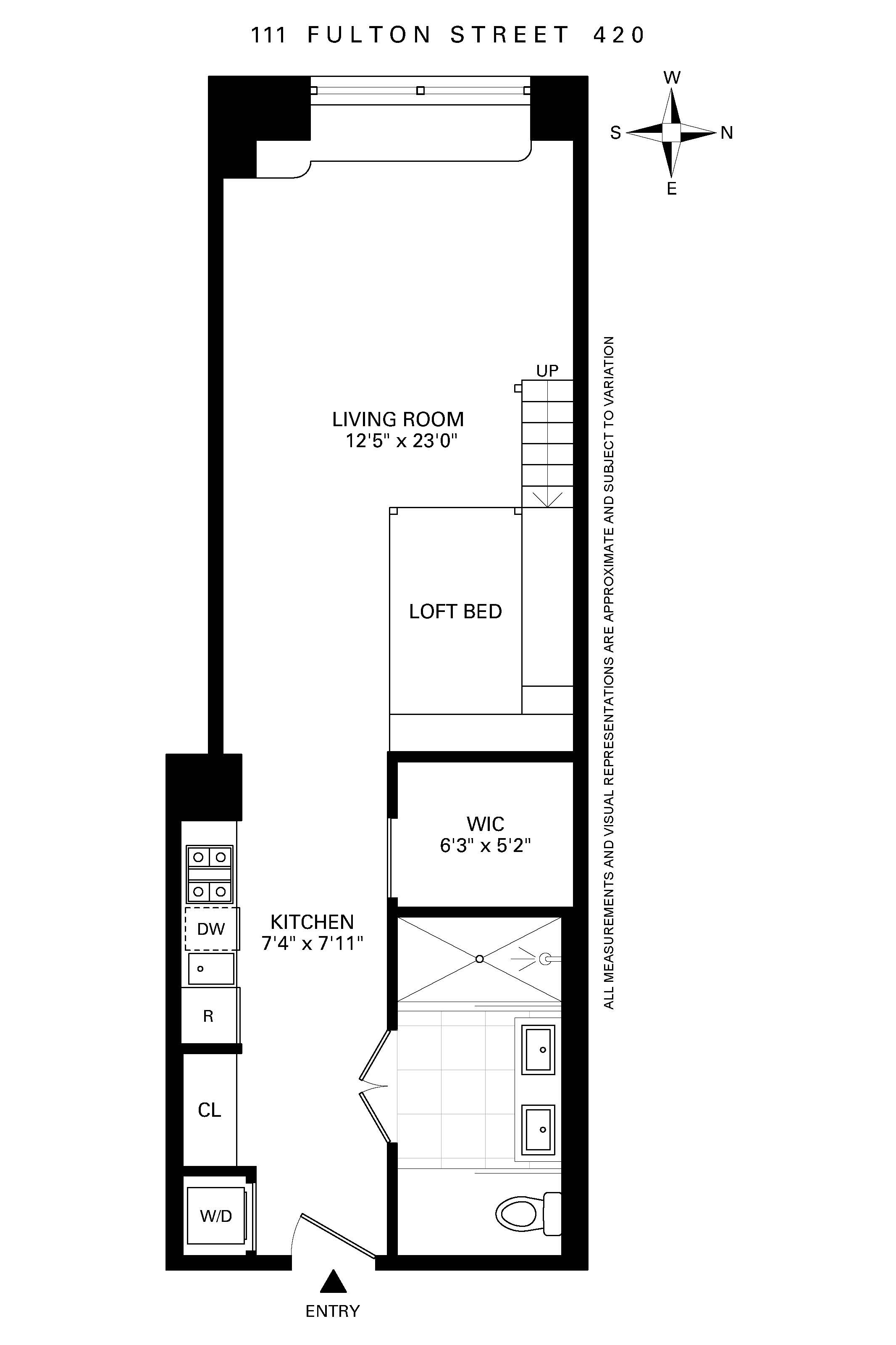
ขนาดการก่อสร้าง : 560 ft² / 52 m²
ขนาดที่ดิน : N/A
ห้องนอน : 0
ห้องอาบน้ำ : 1
ห้องน้ำ : 0
MLS#: 40953351
คำบรรยายอสังหาริมทรัพย์
SOPHISTICATED LOFTY STUDIO Apartment #420 at 111 Fulton, in the coveted District Building, is a gem. This south-facing modern studio is half historic loft, half modern showcase home. With 13-foot high ceilings, a pristine chef’s kitchen filled with top-line appliances, and a spa-like bathroom featuring dual sinks and a walk-in rain shower, every detail is designed for refined downtown living. The oversized walk-in closet adds a luxurious sense of space —perfect for a discerning New Yorker who values both style and practicality. Every inch of this immaculate studio has been thoughtfully utilized. Custom window seating extends the living area, while the loft bed opens the space to live more like a one-bedroom than a studio. Add in the new Bosch washer and dryer, and unit #420 may be one of the most efficient downtown studios on the market. "The District" building is one of the best condos in New York, featuring a full-time concierge, robust staff, health club, pool, jacuzzi, cooling tub, sauna, steam room, cinema room, library, and a spectacular roof deck—making it one of downtown’s most impressive lifestyle addresses. Located minutes from both the World Trade Center and South Street Seaport, and adjacent to The Fulton Center Transportation Hub, 111 Fulton sits at the center of Manhattan’s modern downtown renaissance.
ขึ้น
Sophisticated Lofty Studio, ประเทศสหรัฐอเมริกา,นิวยอร์ก,New York is a 560ft² New York luxury คอนโด listed สำหรับขาย USD 699,999. This high end New York คอนโด is comprised of 0 bedrooms and 1 baths. Find more luxury properties in New York or search for luxury properties สำหรับขาย in New York.