สำหรับขาย, USD 995,000
289 Lowell Street, Somerville, MA, 02145, Somerville, แมสซาชูเซต, ประเทศสหรัฐอเมริกา
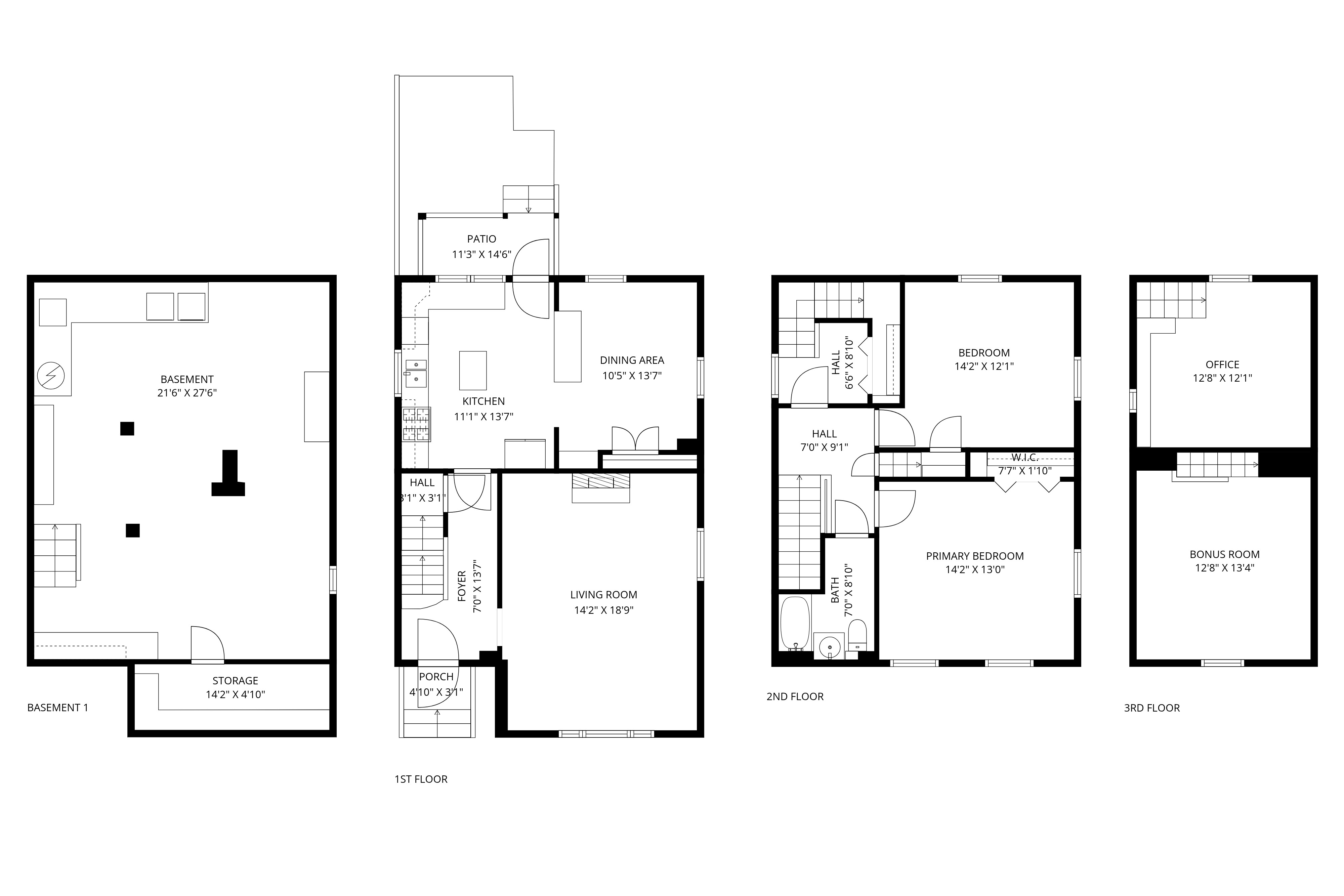
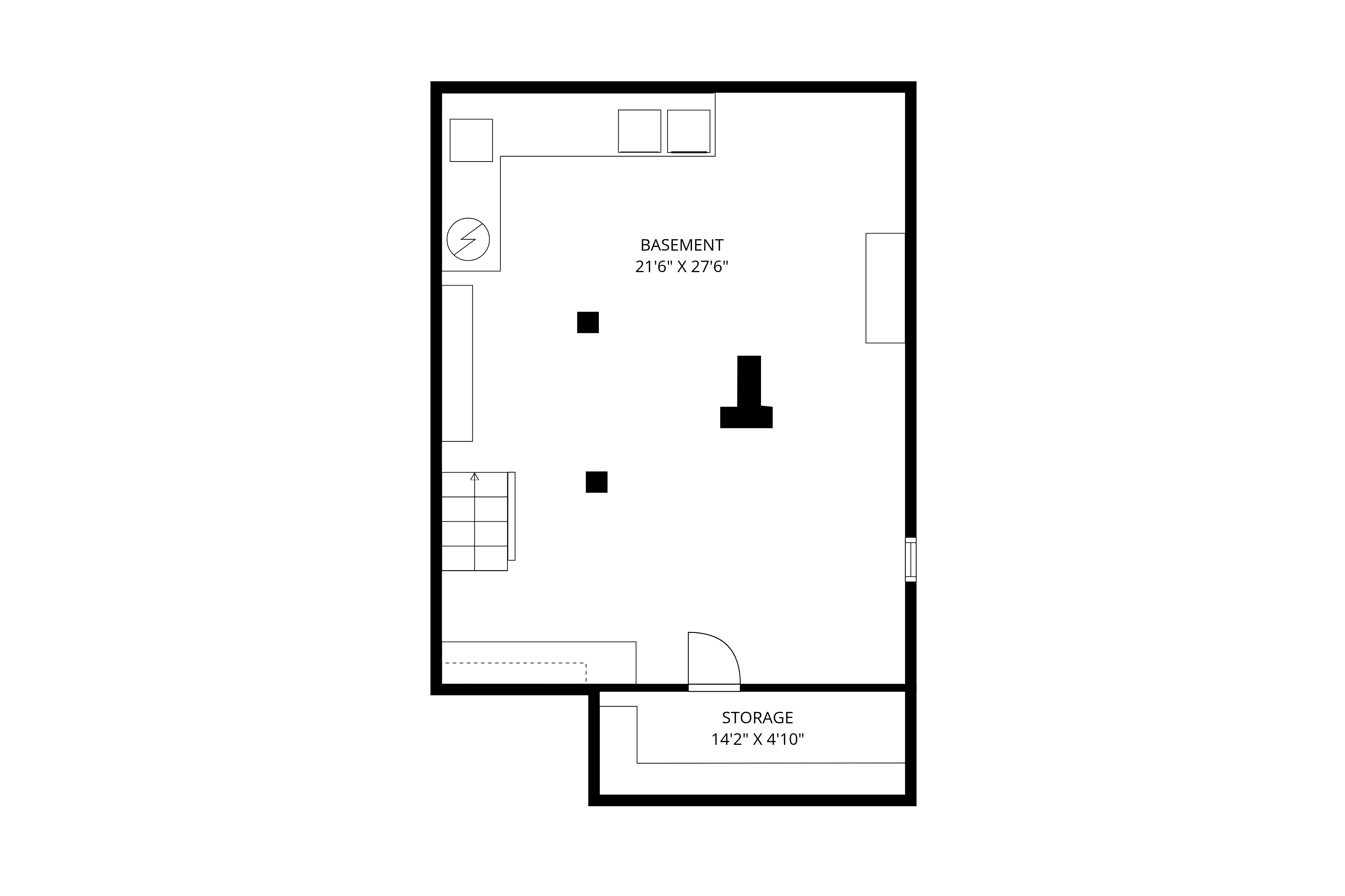
ประเภทอสังหาริมทรัพย์ : หน้าแรกครอบครัวเดี่ยว
รูปแบบอสังหาริมทรัพย์ : โคโลเนียล
ขนาดการก่อสร้าง : 1,810 ft² / 168 m²
ขนาดที่ดิน : 3,484 ft² / 324 m² สับเปลี่ยนขนาดที่ดิน
ห้องนอน : 3
ห้องอาบน้ำ : 1
ห้องน้ำ : 0
MLS#: 73498450
คำบรรยายอสังหาริมทรัพย์
Tucked in the heart of Somerville, this one-of-a-kind property blends convenience, charm, and serenity. A colorful stained glass front door warmly welcomes you inside, setting the tone for the character found throughout. Ideally located just across from the MBTA Green Line, commuting is effortless. This lovingly maintained three bed, one bath home has been thoughtfully updated over the years, featuring rich Brazilian cherry wood floors in the living room, a cozy gas fireplace, and a well-appointed kitchen with stainless steel appliances. The bathroom offers an added touch of comfort with heated floors, while every detail throughout reflects pride of ownership and timeless character. A standout feature is the rare and abundant parking, complete with a three car garage and an additional three driveway spaces, an exceptional offering in this vibrant urban setting. Step outside to your own private oasis: a beautifully landscaped backyard filled with lush greenery and a tranquil koi pond, creating a retreat right at home.
ขึ้น
289 Lowell Street, Somerville, MA, 02145, ประเทศสหรัฐอเมริกา,แมสซาชูเซต,Somerville is a 1,810ft² Somerville luxury หน้าแรกครอบครัวเดี่ยว listed สำหรับขาย USD 995,000. This high end Somerville หน้าแรกครอบครัวเดี่ยว is comprised of 3 bedrooms and 1 baths. Find more luxury properties in Somerville or search for luxury properties สำหรับขาย in Somerville.