Prestigious house in Scicli, facing Montalbano’s Police Station (Off Market)

For Sale, EUR 790,000
(Off Market)


Via Arco Castro, Scicli, RG, 97018,

Property Type : Single Family Home

Property Style : N/A

Build Size : 6,501 ft² / 604 m²

Land Size : N/A

Bedroom : 3

Bathroom : 5

Half Bathroom : 0

MLS#: 12276


Property Description

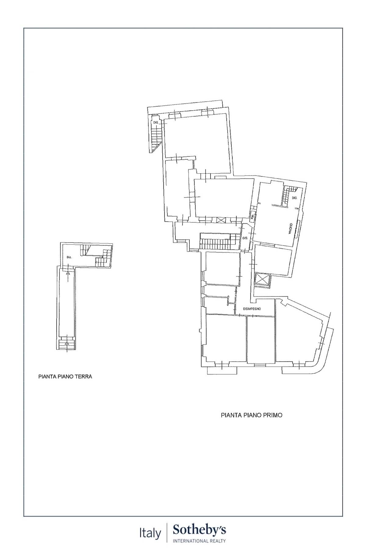
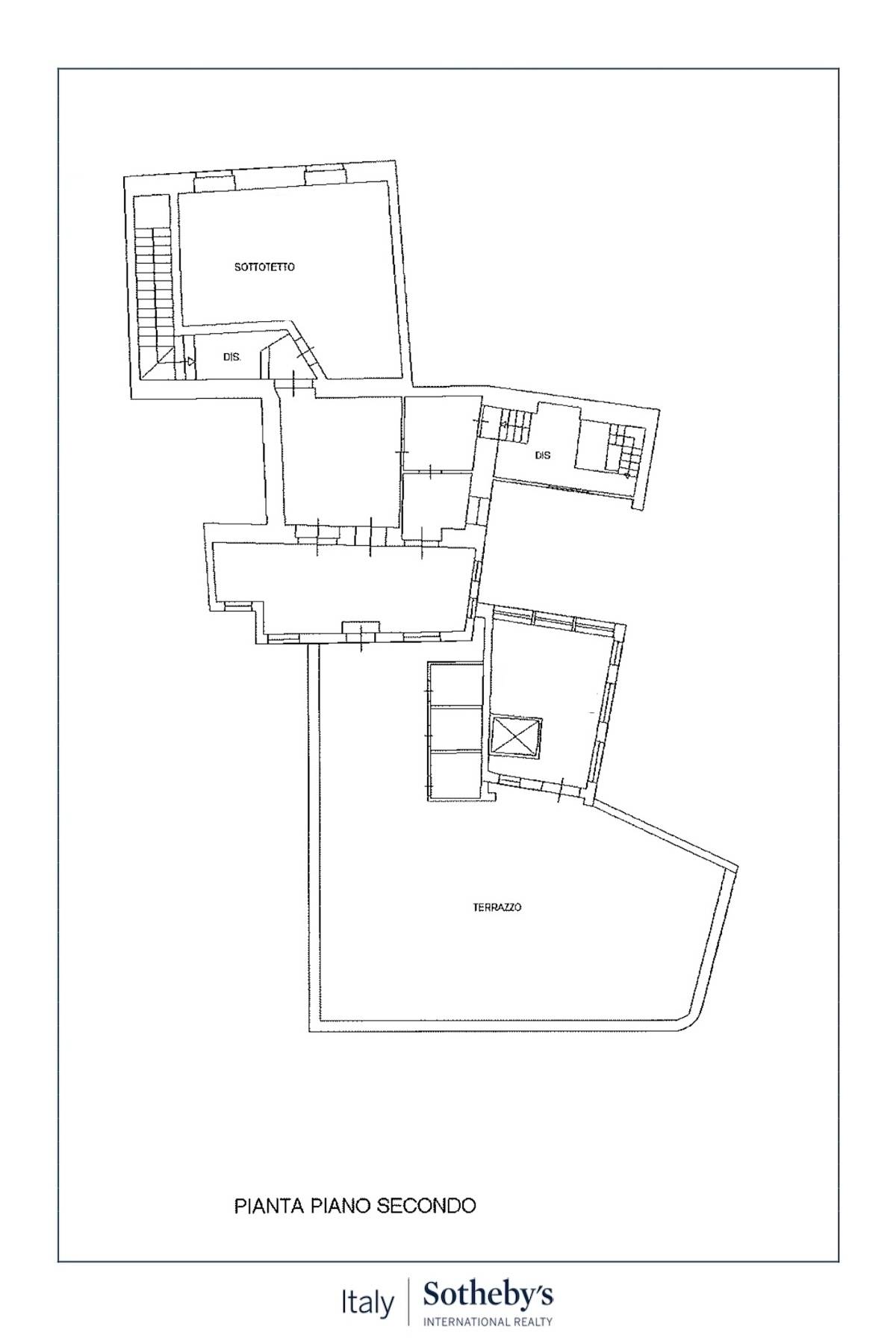
In the heart of Scicli, right on the city's most prestigious street, opposite the famous Baroque Town Hall and Montalbano's Police Station, a townhouse full of history, charm, and potential.Spread over three levels, the property opens on the ground floor with an independent entrance leading to the first floor, where the main part of the house is located. A comfortable staircase leads to a hallway that gives access to the formal living room, which overlooks the main street and the Town Hall. A very elegant and bright room, perfect for those looking for a home with an authentic and privileged view of the baroque heart of the city. Adjacent is the dining room, while a corridor leads to a very large kitchen, complete with two practical storage rooms. Next to it, a large additional room can be used as a second dining area or study. The sleeping area consists of a study, two bathrooms, and three bedrooms, two of which are generously sized double bedrooms.An important feature is the presence of an internal elevator, which conveniently connects the different levels of the property, a rare and valuable detail in a historic context such as this. On the second floor, accessible both by internal staircase and elevator, there is a large attic that can be used as storage or a relaxation area, three additional bathrooms, a veranda room, the pride of the property, and a wonderful panoramic terrace, spacious and private, with an unparalleled view over the rooftops of Scicli, its monuments, and the surrounding hills. A unique place to enjoy moments of peacefulness or entertain guests in a spectacular setting.The property needs complete renovation, but its generous size, intelligent layout, elevator, and above all, the panoramic terrace make it a rare and valuable property in the Val di Noto. The property is about 5 miles from Donnalucata beach, 35 miles from Noto, 52 miles from Syracuse, and about 80 miles from Catania's Fontanarossa Airport.
More
Prestigious house in Scicli, facing Montalbano’s Police Station, Italy is a 6,501ft² Italy luxury Single Family Home listed for sale EUR 790,000. This high end Italy Single Family Home is comprised of 3 bedrooms and 5 baths. Find more luxury properties in Italy or search for luxury properties for sale in Italy.