11348 Reseda Blvd Unit E, Porter Ranch CA 91326 (Off Market)

For Sale, USD 625,000


11348 Reseda Blvd Unit E, Porter Ranch CA 91326,

Property Type : Single Family Home

Property Style : N/A

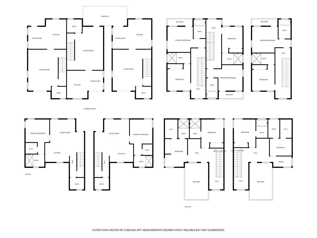
Build Size : 1,000 ft² / 93 m²

Land Size : N/A

Bedroom : 2

Bathroom : 2

Half Bathroom : 0

MLS#: N/A


Property Description

A rare opportunity to own a brand-new, fully detached residence within a small, thoughtfully built community in desirable Porter Ranch. Set within a newly constructed 5-unit development on Reseda Blvd, this two bedroom, two bath home only shares one common wall with another home in the community. Offering a level of privacy and separation that's uncommon in multi-unit properties, it lives like a single-family home at a more accessible price point. The floor plan is open and well-proportioned, with a contemporary kitchen, comfortable living areas, and three generously sized bedrooms each with its own en-suite bathroom and ample closet space. One bedroom is located on the first floor, ideal for work from home or guests. The layout suits both everyday living and entertaining without feeling oversized or impractical. Ownership is structured as a tenant in common which is a meaningful distinction from a standard condo or HOA. Each owner holds a direct ownership interest in the property, making it a strong fit for extended families, co-purchasers, or buyers seeking a true sense of ownership within a small, cohesive community. As new construction, the home comes with all new systems, modern energy efficiency, and fewer of the maintenance concerns that come with older properties. Conveniently located near shopping and dining at the Vineyards,highly rated schools, the Porter Ranch Town Center, with Whole Foods, an array of dining options, and everyday retail all within easy reach. Chatsworth Reservoir and the Santa Susana Mountains provide a scenic backdrop and access to outdoor recreation, while the 118 freeway connects residents quickly to the broader Valley and beyond. Some images have been digitally enhanced, created, or edited and do no necessarily reflect the current condition of the property. More photos to come
More
11348 Reseda Blvd Unit E, Porter Ranch CA 91326, United States,California,Porter Ranch is a 1,000ft² Porter Ranch luxury Single Family Home listed for sale USD 625,000. This high end Porter Ranch Single Family Home is comprised of 2 bedrooms and 2 baths. Find more luxury properties in Porter Ranch or search for luxury properties for sale in Porter Ranch.