2107 Wyoming Avenue NW, Washington, DC, 20008 (Off Market)

For Sale, USD 6,195,000


2107 Wyoming Avenue NW, Washington, DC, 20008,

Property Type : Other Residential

Property Style : N/A

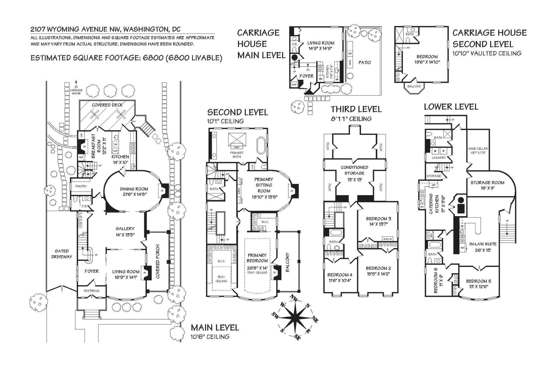
Build Size : 6,800 ft² / 632 m²

Land Size : N/A

Bedroom : 7

Bathroom : 6

Half Bathroom : 2

MLS#: DCDC2253470


Property Description

Designed by renowned architect Albert H. Beers and constructed by Louis Emmert in 1911, this Beaux Arts mansion blends historic pedigree with modern luxury in the heart of the sought-after neighborhood of Kalorama. The home carries a rich and storied past while offering approximately 6,800 square feet of beautifully updated living space.With gated driveway parking, the property is framed by professionally landscaped front and rear gardens, creating a private urban retreat. Inside, soaring 10’6” ceilings on the main level and elegant proportions throughout reflect the home’s historic character, seamlessly paired with thoughtful renovations for today’s lifestyle.The expansive primary suite serves as a true sanctuary, featuring a gracious sitting room, two oversized walk-in closets, and a renovated spa-inspired bath complete with soaking tub, walk-in shower, and dual vanities. The upper levels offer three additional bedrooms and two full baths, providing flexible accommodations for family or guests.The lower level is exceptionally well-appointed with a full catering kitchen, laundry, two full baths, two additional bedrooms, and an ideal in-law or guest suite configuration with a separate entrance. A standalone two-story carriage house with 1.5 baths offers further versatility for guests, staff, or rental income potential.The Outdoor living is compelling, with a covered rear deck overlooking the private garden - perfect for entertaining or quiet relaxation.Ideally located just moments from the shops and restaurants of Connecticut Avenue, Mitchell Park, and Rock Creek Park, this exceptional residence presents a rare opportunity to own a piece of Washington, DC history, thoughtfully reimagined for modern living.
More


2107 Wyoming Avenue NW, Washington, DC, 20008, United States,District of Columbia,Washington is a 6,800ft² Washington luxury Other Residential listed for sale USD 6,195,000. This high end Washington Other Residential is comprised of 7 bedrooms and 6 baths. Find more luxury properties in Washington or search for luxury properties for sale in Washington.