For Sale, USD 300,000
211 Kickapoo Trail, Weatherford TX 76087, Weatherford, Texas, United States
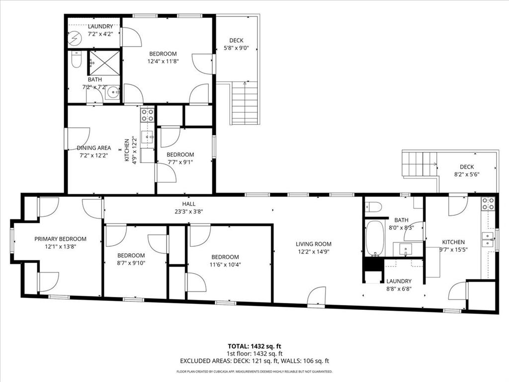
Property Type : Single Family Home
Property Style : N/A
Build Size : 1,459 ft² / 136 m²
Land Size : N/A
Bedroom : 5
Bathroom : 2
Half Bathroom : 0
MLS#: N/A
Property Description
Complete transformation with thoughtful additions - this is not your typical mobile home. Although currently configured as one home conveniently divided into two separate living spaces, it can easily be converted back to a traditional single-family layout if desired. In its current setup, go ahead and count everything twice: two front doors, two back doors, two living areas, two kitchens, two full bathrooms, two laundry areas, all topped off with 5 total bedrooms. This unique arrangement offers incredible flexibility for multigenerational living, rental income, or a spacious single-family residence. Beyond the versatile floorplan, everything is brand new. Updates include new flooring, walls, interior and exterior paint, electrical, plumbing, water heaters, cabinets, hardware, siding, shutters - and the best upgrade of all: a brand-new 45-year metal roof!! A truly move-in-ready property with endless possibilities.
More
211 Kickapoo Trail, Weatherford TX 76087, United States,Texas,Weatherford is a 1,459ft² Weatherford luxury Single Family Home listed for sale USD 300,000. This high end Weatherford Single Family Home is comprised of 5 bedrooms and 2 baths. Find more luxury properties in Weatherford or search for luxury properties for sale in Weatherford.