827 Dolley Madison Boulevard, Mclean, VA, 22101 (tham khảo)

Bán, USD 6,295,000


827 Dolley Madison Boulevard, Mclean, VA, 22101,

Loại bất động sản : Nhà ở khác

Hình thức bất động sản : N/A

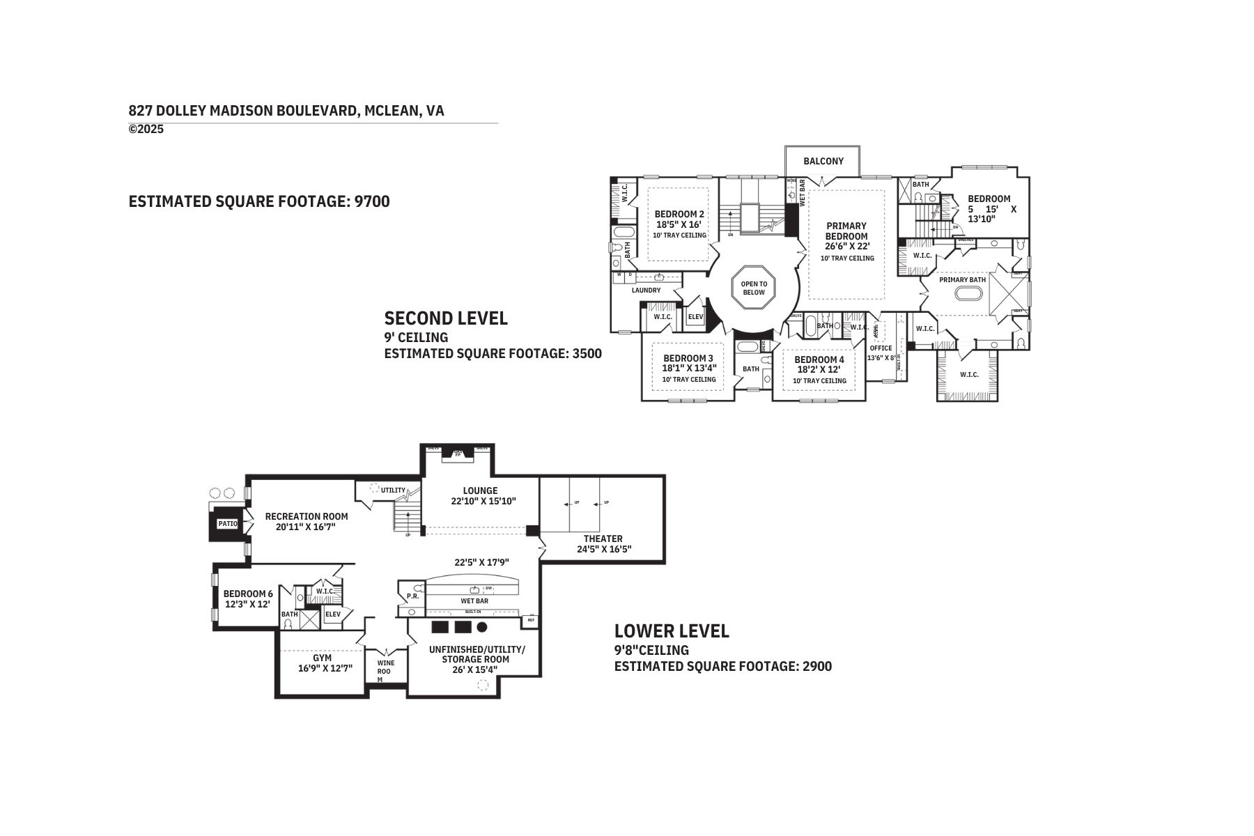
Diện tích xây dựng : 9.700 ft² / 901 m²

Diện tích đất : N/A

Phòng ngủ : 7

Phòng tắm : 8

Phòng tắm : 2

MLS#: VAFX2301514


Mô tả bất động sản

Hidden down a discreet private drive along one of McLean’s most iconic roads, 827 Dolley Madison Boulevard is a custom estate representing the highest caliber in design, materials, and craftsmanship. Constructed in 2021, the immaculate residence rises over its surroundings, its four sides of white brick with dark window trim creating an imperious presence that exudes transitional elegance, both timeless and modern.A stone retaining wall sets the tone for a harmonious blend of extensive hardscaping and manicured landscaping, all radiantly illuminated after sunset to envelop the setting in a warm glow. A flagstone walkway gracefully leads to double glass front doors beneath a stately portico, opening to a sophisticated plan spanning more than 9,700 finished square feet. Interiors curated by Edith Gregson Design showcase sumptuous selections—Hoppe hardware, Visual Comfort lighting, and wall coverings by Schumacher, Phillip Jeffries, and Temperley London,all integrated with fastidious workmanship and an artful eye.Formal living and dining rooms flank the reception hall. The living room offers wooded views and gleaming candy-gloss walls, while the dining room dazzles with a lacquered ceiling, Murano blown-glass chandelier, and bold millwork. At the center, an octagonal rotunda soars open to above, anchoring the home with graceful symmetry. A study lined with built-ins doubles as a bedroom suite with full bath. An elevator and powder room are set within the adjoining vestibule.A grand central staircase, bathed in natural light, separates the informal spaces. The family room features a striking grasscloth coffered ceiling and floor-to-ceiling marble fireplace, opening to a screened porch for year-round enjoyment. The chef’s kitchen is a functional masterpiece, with stacked shaker cabinetry, industrial pendants, and a custom Coppersmith hood above a full Thermador suite. A waterfall peninsula transitions to a sunny breakfast room opening to the rear patio. An amenity-rich mudroom area includes a pantry, laundry, cubbies, a pool bath, and access to the four-car garage.The primary suite occupies its own wing upstairs, boasting a tray-ceilinged bedroom, wet bar, and balcony. A custom beauty room doubles as a hidden office, while a bespoke dressing room offers dual-tone cabinetry and center island. Two additional walk-ins are each fully outfitted. The marble-clad bath impresses with arched ceiling above a Victoria + Albert tub and walk-in shower. Radiant floors, dual vanities, and dual water closets complete the space. Four additional bedrooms each feature tray ceilings, ensuite baths, and spacious closets. A secondary laundry completes this level.The lower level, with 10-foot ceilings, is an entertainer’s dream. A walkout recreation room centers the space, with adjacent bar featuring antique mirrored backsplash and a lounge with riveted metal fireplace. Additional amenities include a screening room, fitness center, wine room, sixth bedroom suite, extra laundry, and stylish powder room. State-of-the-art systems include full Lutron lighting, surround sound, Vector security with video monitoring, and advanced HVAC and water treatment.Outdoors, a bluestone terrace surrounds a 40' x 20' saltwater lap pool with automatic cover, water features, built-in seating, and dramatic lighting. The adjacent cabana features a roaring fireplace with TV above, lounge and dining areas, and a full outdoor kitchen. Beyond, stone tiers cascade to a cutting and herb garden framed by lush plantings.Just a quarter mile from the GW Parkway, the estate enjoys one of McLean’s most coveted locations, convenient to both Washington and Tysons Corner. Amenity-rich, exquisitely appointed, and designed with impeccable taste, 827 Dolley Madison Boulevard stands as one of the Capital Region’s premier showcases of restrained elegance.
hơn


827 Dolley Madison Boulevard, Mclean, VA, 22101, Hoa Kỳ,Virginia,Mc Lean is a 9.700ft² Mc Lean luxury Nhà ở khác listed bán USD 6,295,000. This high end Mc Lean Nhà ở khác is comprised of 7 bedrooms and 8 baths. Find more luxury properties in Mc Lean or search for luxury properties bán in Mc Lean.