Bán, JPY 150,000,000
Okinawa, Nhật Bản
Loại bất động sản : Nhà cho gia đình ít người
Hình thức bất động sản : N/A
Diện tích xây dựng : 3.014 ft² / 280 m²
Diện tích đất : 4.573 ft² / 425 m² Chuyển đổi diện tích đất
Phòng ngủ : 4
Phòng tắm : 1
Phòng tắm : 2
MLS#: N/A
Mô tả bất động sản
Conveniently located within walking distance of Araha Beach.
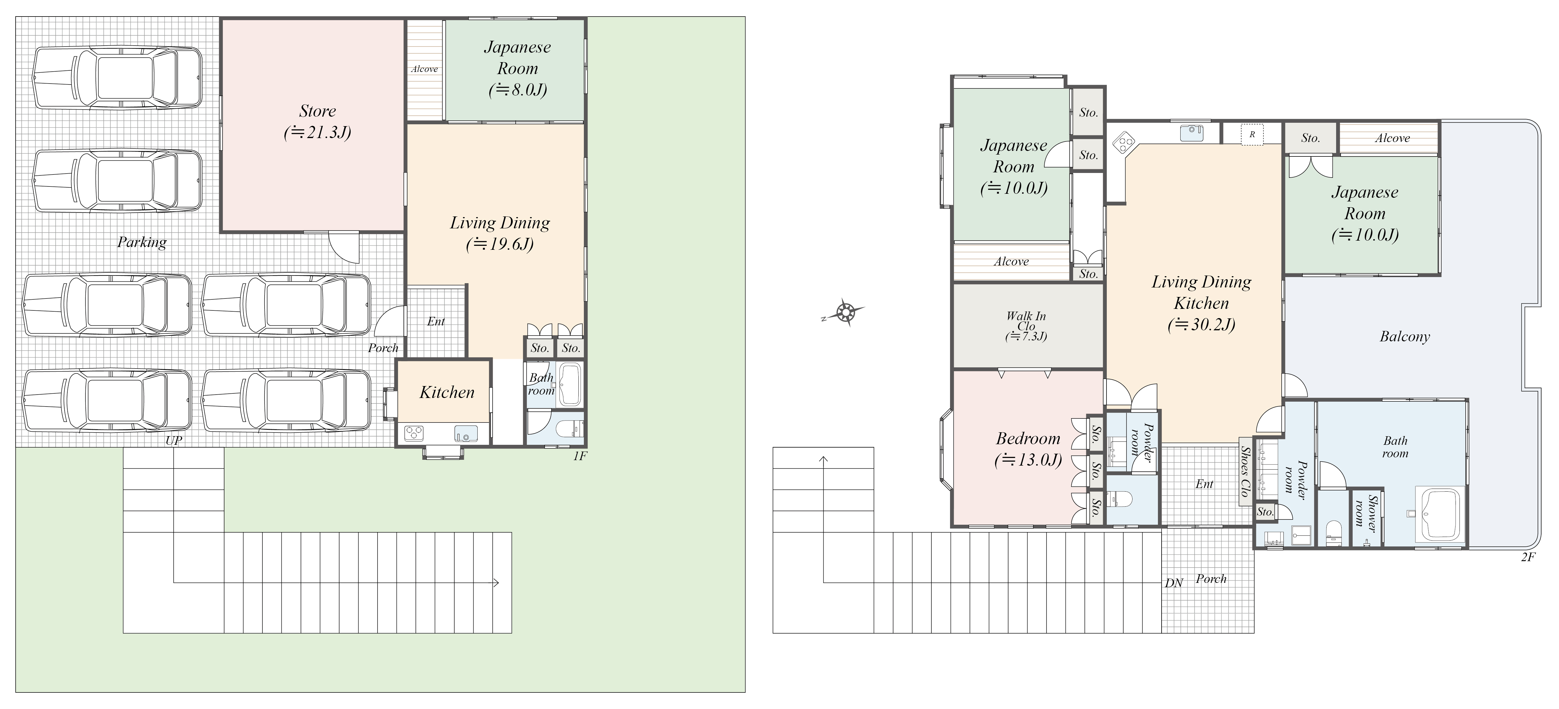
A spacious, open-concept design that allows multiple households to live comfortably.
The second floor features an external staircase for enhanced privacy.
It can be used as a guest room or a second living room.
A spacious entrance area with parking for six cars (including two in the garage).
■Location: 2-chome, Chatan, Chatan-cho, Nakagami District, Okinawa Prefecture
■Access: 3-minute walk from the “Chatan 2-chome” stop on the Ryukyu Bus line
■Land Title: Freehold
■Land Area: Registered area: 424.92 m² (approx. 128.53 tsubo)
■Private Road Maintenance Obligations: None
■Land Classification: Residential
■Road Frontage: Public road on the north side, approx. 5m wide, approx. 20m frontage
■Legal Restrictions: Landscape Ordinance, etc.
■Zoning: Type 1 Medium-to-High-Rise Residential District
■Urban Planning: Non-designated area
■Building Coverage Ratio/Floor Area Ratio: 60%/200%
■Building Area: Registered 280.05 m² (approx. 84.71 tsubo)
■Floor Plan: 1st Floor (1LDK + retail space), 2nd Floor (3LDK)
■Structure: 2-story reinforced concrete
■Construction Date: October 1993
■Parking: Available
■Current Status: Occupied
■Delivery: Negotiable
■Utilities: Municipal water, Okinawa Electric Power, propane gas, public sewer
■Mode of Transaction: Brokerage.
■Last update date: https://list-sir.jp/lp/date
hơn
A spacious, open-concept design that allows multiple households to live comfortably.
The second floor features an external staircase for enhanced privacy.
It can be used as a guest room or a second living room.
A spacious entrance area with parking for six cars (including two in the garage).
■Location: 2-chome, Chatan, Chatan-cho, Nakagami District, Okinawa Prefecture
■Access: 3-minute walk from the “Chatan 2-chome” stop on the Ryukyu Bus line
■Land Title: Freehold
■Land Area: Registered area: 424.92 m² (approx. 128.53 tsubo)
■Private Road Maintenance Obligations: None
■Land Classification: Residential
■Road Frontage: Public road on the north side, approx. 5m wide, approx. 20m frontage
■Legal Restrictions: Landscape Ordinance, etc.
■Zoning: Type 1 Medium-to-High-Rise Residential District
■Urban Planning: Non-designated area
■Building Coverage Ratio/Floor Area Ratio: 60%/200%
■Building Area: Registered 280.05 m² (approx. 84.71 tsubo)
■Floor Plan: 1st Floor (1LDK + retail space), 2nd Floor (3LDK)
■Structure: 2-story reinforced concrete
■Construction Date: October 1993
■Parking: Available
■Current Status: Occupied
■Delivery: Negotiable
■Utilities: Municipal water, Okinawa Electric Power, propane gas, public sewer
■Mode of Transaction: Brokerage.
■Last update date: https://list-sir.jp/lp/date
Used single-family home in Chatan 2-chome, Chatan Town, Nhật Bản,Okinawa is a 3.014ft² Okinawa luxury Nhà cho gia đình ít người listed bán JPY 150,000,000. This high end Okinawa Nhà cho gia đình ít người is comprised of 4 bedrooms and 1 baths. Find more luxury properties in Okinawa or search for luxury properties bán in Okinawa.