Shingle-Style Residence A Short Walk to Nubble Lighthouse (tham khảo)

Bán, USD 1,195,000


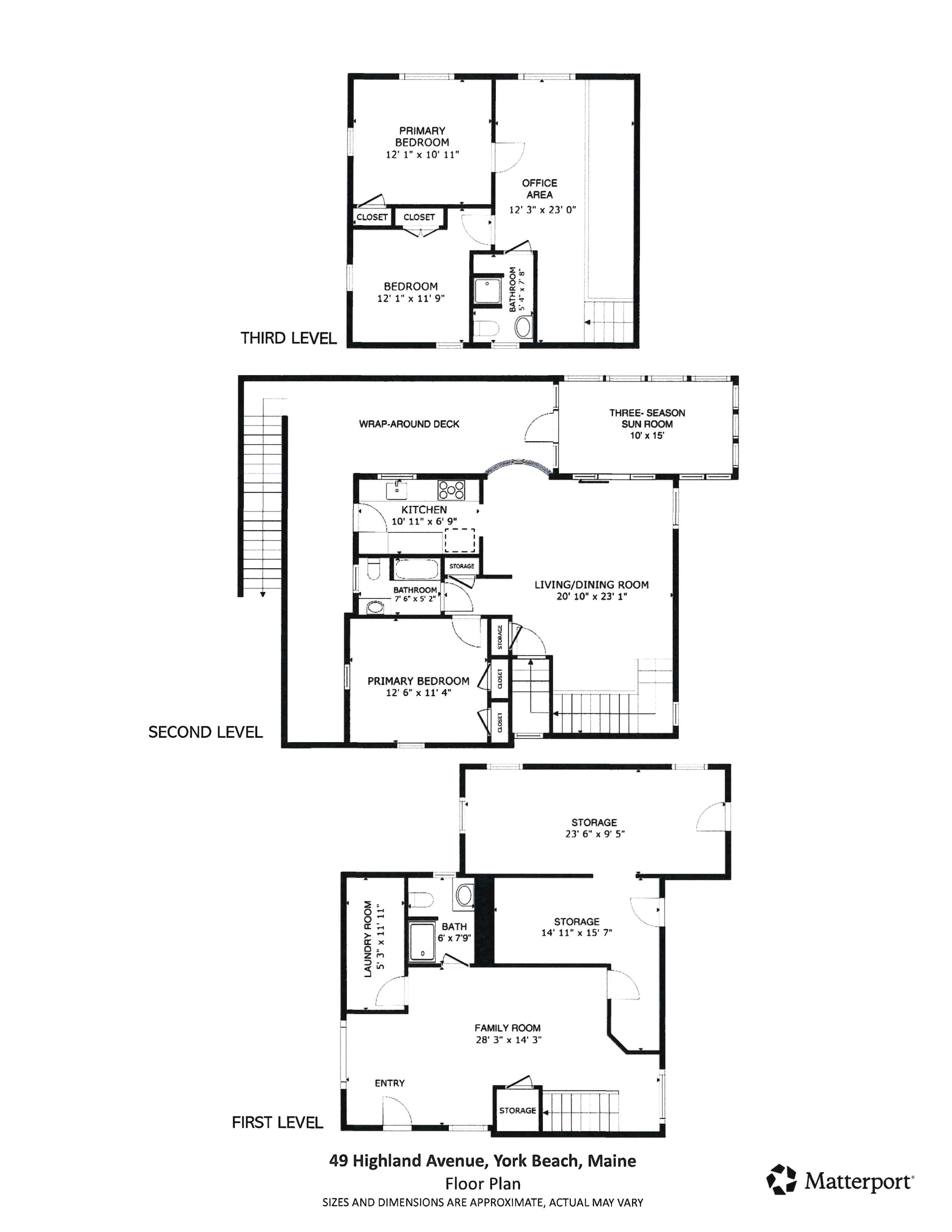
49 Highland Avenue, York, ME, 03909,

Loại bất động sản : Nhà cho gia đình ít người

Hình thức bất động sản : N/A

Diện tích xây dựng : 2.181 ft² / 203 m²

Diện tích đất : 5.227 ft² / 486 m² Chuyển đổi diện tích đất

Phòng ngủ : 3

Phòng tắm : 3

Phòng tắm : 0

MLS#: 1658657


Mô tả bất động sản

Walk to famed Nubble Lighthouse, Dunne's Ice Cream, The Viewpoint Hotel & a little auk, and both Long or Short Sands beaches from this immaculate Shingle Style beach home. You're greeted with stunning curb appeal and a custom paver driveway at this masterfully crafted 3 bedroom, 3 bath residence. The home's flexible floor plan offers three levels of living space and peek-a-boo water views. The main level features a living room with soaring cathedral ceilings, galley kitchen, guest bedroom, full bath, and a dining room with glass doors leading to the 3-season porch and wrap around deck; perfect for BBQs and summertime entertaining. Upstairs, are two additional guest bedrooms, a full bath and an office area. The first floor features a family room, a full bath, a laundry room and two large storage areas that could be used for future expansion or possible ADU. The home boasts gleaming hardwood floors, Anderson windows, built-ins and custom millwork throughout. The beautifully landscaped grounds, outdoor shower, irrigation system, shed, and storage space make this a great place to call home. Great year round, second home or investment property with excellent rental history.


hơn

Phong cách sống

Họat động dưới nước
Chèo thuyền
Đại dương/Bãi biển
Họat động ngoài trời
Shingle-Style Residence A Short Walk to Nubble Lighthouse, Hoa Kỳ,Maine,York is a 2.181ft² York luxury Nhà cho gia đình ít người listed bán USD 1,195,000. This high end York Nhà cho gia đình ít người is comprised of 3 bedrooms and 3 baths. Find more luxury properties in York or search for luxury properties bán in York.