1867 Corcoran Street NE, Washington, DC, 20002 (tham khảo)

Bán, USD 749,900


1867 Corcoran Street NE, Washington, DC, 20002,

Loại bất động sản : Chung cư

Hình thức bất động sản : Đương đại

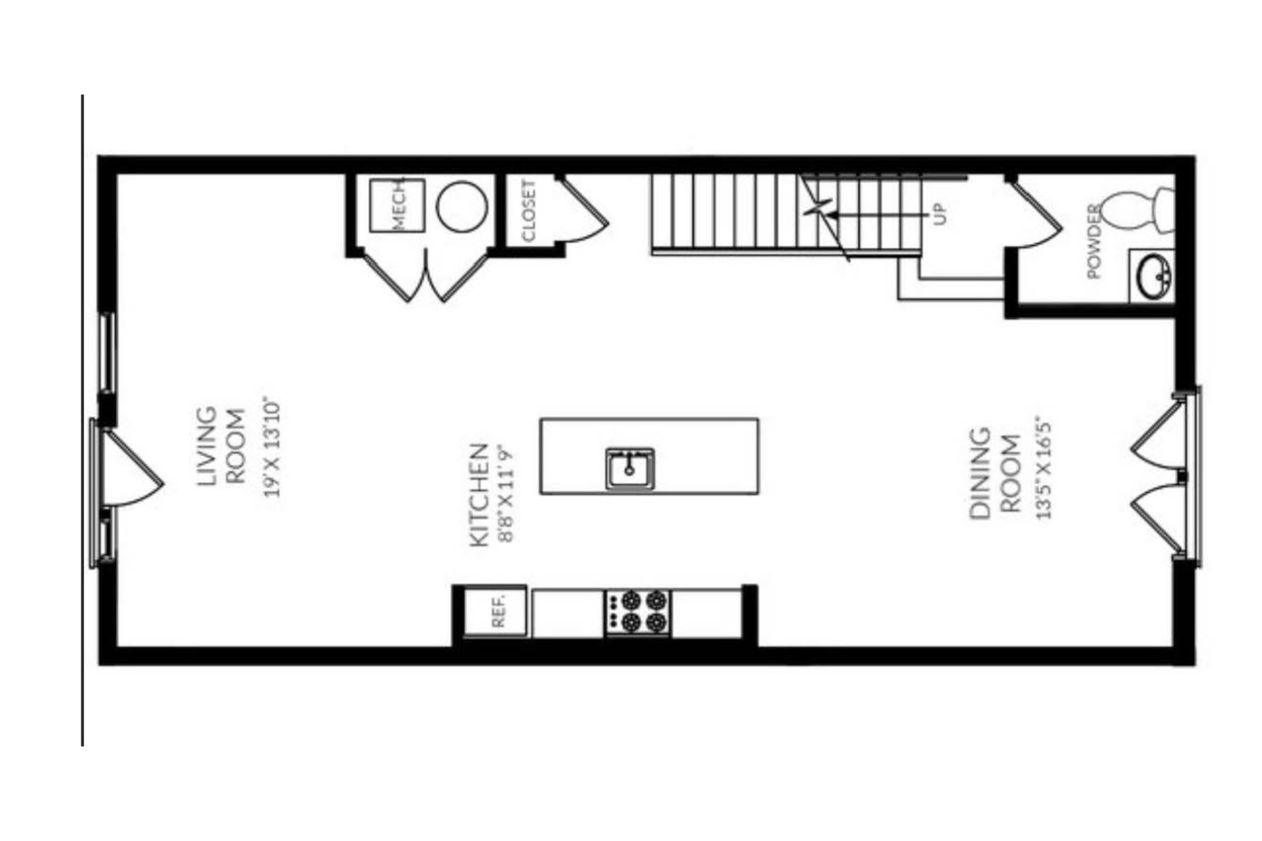
Diện tích xây dựng : 1.760 ft² / 164 m²

Diện tích đất : N/A

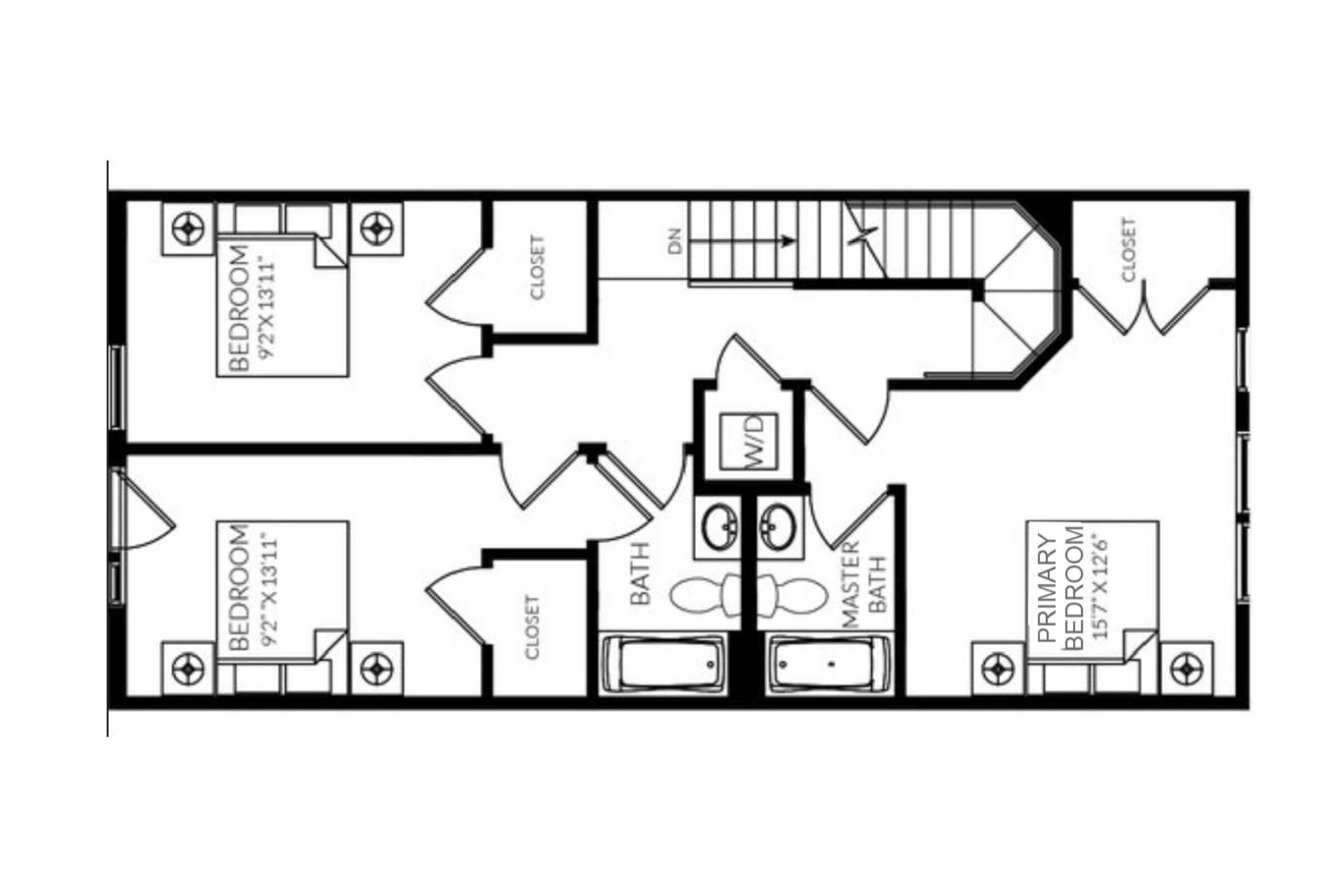
Phòng ngủ : 3

Phòng tắm : 2

Phòng tắm : 1

MLS#: DCDC2257674


Mô tả bất động sản

Tucked into a vibrant Northeast DC enclave, 1867 Corcoran St NE #B offers a thoughtfully designed, two-level residence that balances clean, modern design with everyday functionality. From the moment you enter, the home feels open and airy, with wide-plank hardwood floors, high ceilings, and oversized windows bringing in abundant natural light.The main level is centered around a seamless living, dining, and kitchen layout, ideal for both relaxed daily living and entertaining. The kitchen is both polished and practical, featuring sleek cabinetry, quartz countertops, and a spacious island that anchors the space and provides additional seating. A well-placed powder room adds convenience to this level.Upstairs, the primary suite offers a comfortable retreat with ample closet space and a modern en-suite bath finished with custom tilework and a glass-enclosed shower. Two additional bedrooms and a full bath provide flexibility for guests, a home office, or additional living space, while in-unit laundry is conveniently located on the same level.Above it all, the private rooftop deck serves as an extension of the home—perfect for entertaining or unwinding, with open exposure and sunlight throughout the day.Set within a dynamic Northeast location, the home is surrounded by a mix of local dining, retail, and everyday conveniences, with easy access to some of DC’s most popular destinations. A polished, move-in ready opportunity that delivers both style and practicality.
hơn
1867 Corcoran Street NE, Washington, DC, 20002, Hoa Kỳ,District of Columbia,Washington is a 1.760ft² Washington luxury Chung cư listed bán USD 749,900. This high end Washington Chung cư is comprised of 3 bedrooms and 2 baths. Find more luxury properties in Washington or search for luxury properties bán in Washington.