Bán, USD 375,000
7 Governor Square, Peterborough, NH, 03458, Peterborough, New Hampshire, Hoa Kỳ
Loại bất động sản : Chung cư
Hình thức bất động sản : N/A
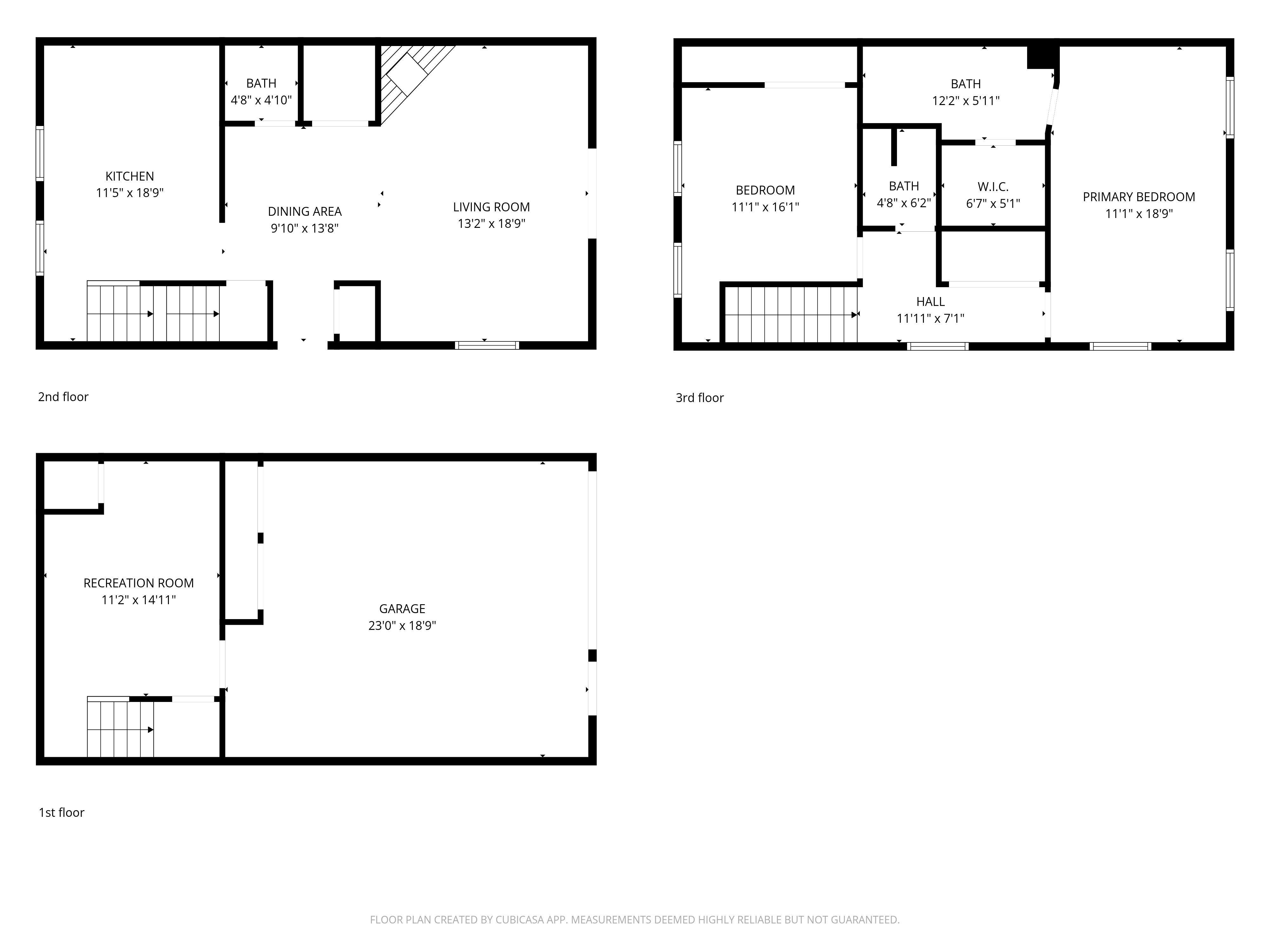
Diện tích xây dựng : 1.610 ft² / 150 m²
Diện tích đất : N/A
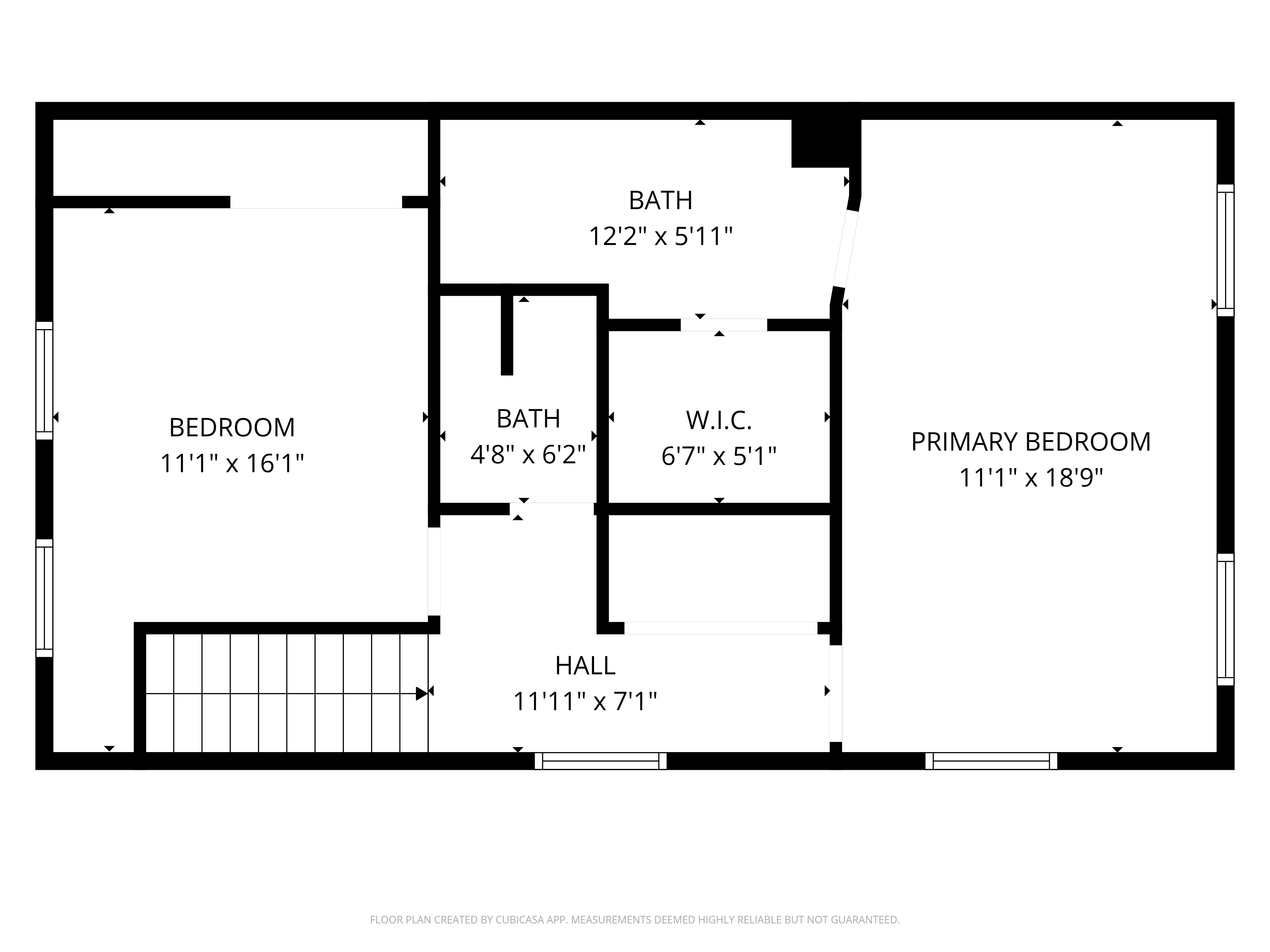
Phòng ngủ : 2
Phòng tắm : 2
Phòng tắm : 1
MLS#: 5084497
Mô tả bất động sản
Bright, inviting, and full of personality, this end-unit condominium at Governor Square offers comfortable, low-maintenance living minutes from downtown Peterborough. The main level features a spacious living room with hardwood floors, oversized windows with energy-efficient blinds, a wood-burning fireplace, and direct access to a private deck for relaxing. The cheerful kitchen has bold accents, including painted wood cabinetry, butcher-block countertops, and an easy flow to the dining area. There is also a reading nook that could serve as your office, and a half bath, all on the main level. Upstairs, the primary suite has a walk-in closet and an en suite bath with a shower, while a second well-proportioned bedroom is just down the hall, along with an additional bath and a laundry closet. Energy-efficient cellular honeycomb custom shades keep your home warmer in winter and cooler in summer. The finished lower level provides flexible bonus space that would be ideal for exercise, hobbies, or as a guest room. A one-car garage with additional storage completes the offering of this stylish, quality home. Whether by car or by foot, residents are close to all the Monadnock Region's amenities: theater, arts, shopping, spa, restaurants, groceries, library, hospital, recreation, hiking trails, and scenic beauty all around. An excellent value in a desirable location! Shown by appointment.
hơn
Phong cách sống
* Miền quê
7 Governor Square, Hoa Kỳ,New Hampshire,Peterborough is a 1.610ft² Peterborough luxury Chung cư listed bán USD 375,000. This high end Peterborough Chung cư is comprised of 2 bedrooms and 2 baths. Find more luxury properties in Peterborough or search for luxury properties bán in Peterborough.