2009 Long Meadow Court, Richmond KY 40475 (tham khảo)

Bán, USD 499,900


2009 Long Meadow Court, Richmond KY 40475,

Loại bất động sản : Nhà cho gia đình ít người

Hình thức bất động sản : Đương đại

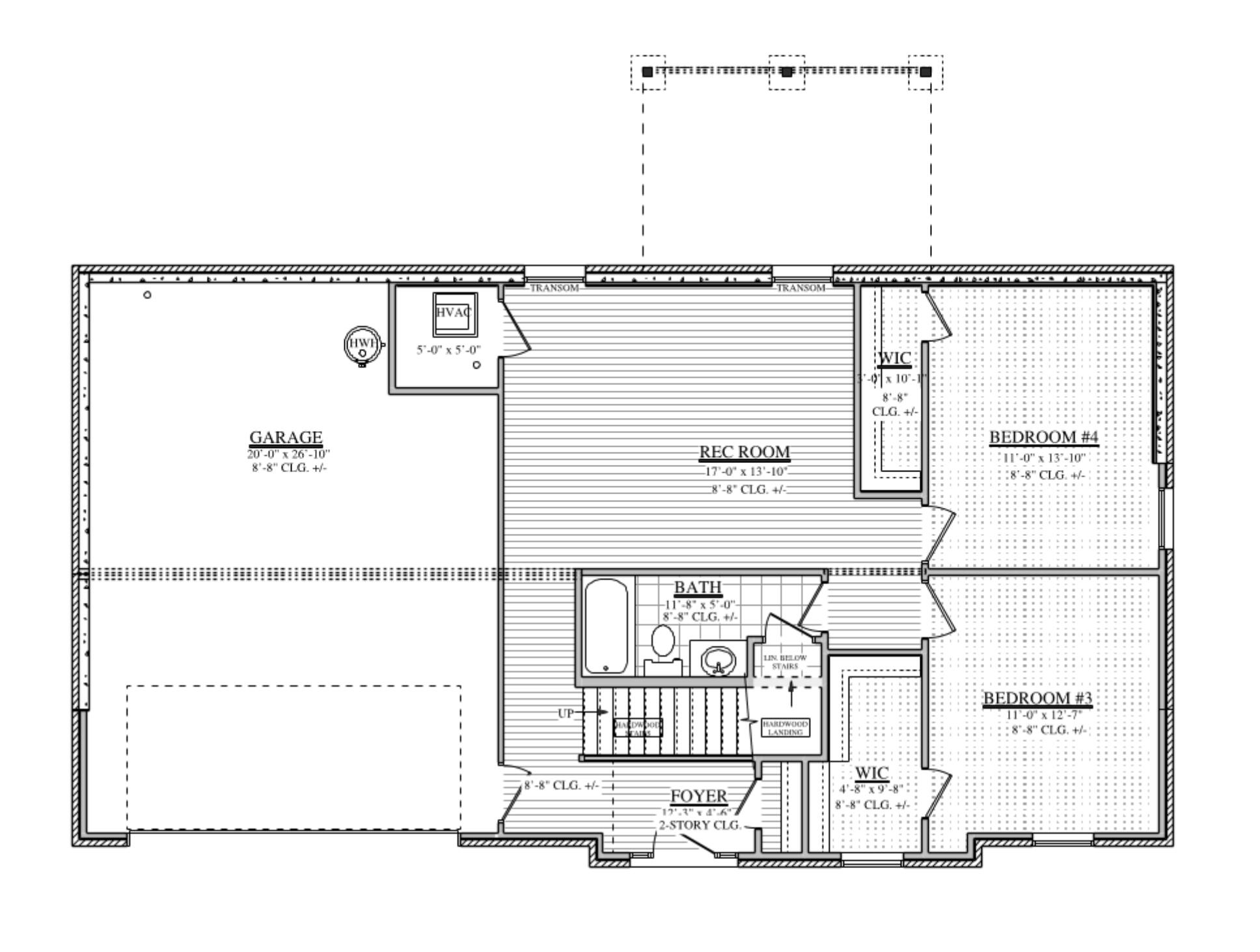
Diện tích xây dựng : 2.537 ft² / 236 m²

Diện tích đất : N/A

Phòng ngủ : 4

Phòng tắm : 3

Phòng tắm : 0

MLS#: N/A


Mô tả bất động sản

Purchase with confidence and discover the distinctive quality of Payne Homes. With over 30 years of building experience in Madison County, Payne Homes are renowned for their award-winning functional floor plans, premium STANDARD features and meticulous attention to energy-efficient details.
hơn
2009 Long Meadow Court, Richmond KY 40475, Hoa Kỳ,Kentucky,Richmond is a 2.537ft² Richmond luxury Nhà cho gia đình ít người listed bán USD 499,900. This high end Richmond Nhà cho gia đình ít người is comprised of 4 bedrooms and 3 baths. Find more luxury properties in Richmond or search for luxury properties bán in Richmond.